Новобудови
Продаж
Оренда
Мій ЛУН
Інше
Завантажити в
Завантажити в
Девелоперам: реклама на ЛУН
Рієлторам: розмістити оголошення
Власникам: розміщення через ЛУН додаток
Для ЗМІ
FAQ
Вакансії
Команда підтримки
грн
$
Iнші проєкти
від
грн
$
Безбарʼєрність та
комфорт міського
простору
Тренди та інсайти від
експертів нерухомості
Професійна рієлторська мережа
Застосунок оренди квартир на 3D-мапі
Нерухомість
Грузії
Спільнота девелоперів
житлових проєктів
Ми в соцмережах
ЖК Северинівський
ЖК Северинівський
Про проєкт
Квартири
NEW
Планування
Моніторинг будівництва
Новини
1-кімнатні квартири
1 кімната
41.72 м²
Поверхи: 1-5
Будинок 1
3 кв. 2013
Збудовано
1 кімната
41.72 м²
Поверхи: 1-5
Будинок 1
3 кв. 2013
Збудовано
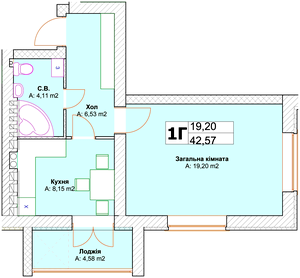
1 кімната
42.57 м²
Поверхи: 1-5
Будинок 1
3 кв. 2013
Збудовано
1 кімната
42.57 м²
Поверхи: 1-5
Будинок 1
3 кв. 2013
Збудовано
2-кімнатні квартири
2 кімнати
65.05 м²
Поверхи: 1-5
Будинок 1
3 кв. 2013
Збудовано
2 кімнати
65.05 м²
Поверхи: 1-5
Будинок 1
3 кв. 2013
Збудовано
Нерухомість Ірпеня від забудовника
Дешеві новобудови Ірпеня
Забудовник VP
ЖК Северинівський
Планування
Планування