Новобудови
Продаж
Оренда
Мій ЛУН
Інше
Завантажити в
Завантажити в
Девелоперам: реклама на ЛУН
Рієлторам: розмістити оголошення
Власникам: розміщення через ЛУН додаток
Для ЗМІ
FAQ
Вакансії
Команда підтримки
грн
$
Iнші проєкти
від
грн
$
Безбарʼєрність та
комфорт міського
простору
Тренди та інсайти від
експертів нерухомості
Професійна рієлторська мережа
Застосунок оренди квартир на 3D-мапі
Нерухомість
Грузії
Спільнота девелоперів
житлових проєктів
Ми в соцмережах
ЖК Нова Англія
ЖК Нова Англія
Про проєкт
Планування
Моніторинг будівництва
Документи
Аерообліт 360
Контакти
Новини
2-кімнатні квартири від
3.43 млн грн
78 тис. $
56 800 — 63 000 грн за м²
$ 1 290 — 1 430 за м²
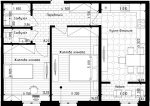
2 кімнати
59.5 м²
Будинок «Ньюкасл» (Секція 1)
1 кв. 2023
Збудовано
56 800 — 63 000 грн за м²
$ 1 290 — 1 430 за м²
2 кімнати
60.31-60.71 м²
Будинок «Лондон» (Секція 1)
3 кв. 2022
Збудовано
56 800 — 63 000 грн за м²
$ 1 290 — 1 430 за м²
2 кімнати
76.1 м²
Поверхи: 4-13
Будинок «Брістоль»
4 кв. 2019
Збудовано
56 800 — 63 000 грн за м²
$ 1 290 — 1 430 за м²
2 кімнати
120.58 м²
Поверхи: 13
Будинок «Ліверпуль»
1 кв. 2018
Збудовано
56 800 — 63 000 грн за м²
$ 1 290 — 1 430 за м²
2 кімнати
125.74 м²
Поверхи: 13
Будинок «Ліверпуль»
1 кв. 2018
Збудовано
Контакти відділу продажу
Київ, вул. Михайла Максимовича, 24
Відділ продажу
Пн - Пт:
10:00 - 19:00
Сб:
11:00 - 17:00
Нд:
вихідний
+38 044 ... Показати
Написати
Новобудови Києва
Квартира в новобудові Голосіївського району
Комплекси комфорт-класу
Забудовник Royal House
ЖК Нова Англія
Планування
Найважливіші оновлення ЖК Нова Англія
Акції, знижки та спецпропозиції
Нові фотографії з будівництва, аерообльоти
Оновлення цін від відділу продажу
Оновлення документів в реєстрах
Всі оновлення в додатку
Планування