ЖК Набережний квартал
1-кімнатні квартири
Продано
1 кімната
25.55 м²
Поверхи: 2-8
Секція 3
2 кв. 2025
Збудовано
Продано
1 кімната
29.61 м²
Поверхи: 2-8
Секція 3
2 кв. 2025
Збудовано
Продано
1 кімната
29.92 м²
Поверхи: 2-7
Секція 4
3 кв. 2026
Будується
Продано
1 кімната
32 м²
Поверхи: 2-7
Секція 4
3 кв. 2026
Будується
Продано
1 кімната
37.24 м²
Поверхи: 7
Секція 2
1 кв. 2023
Збудовано
Продано
1 кімната
38.68 м²
Поверхи: 2-8
Секція 3
2 кв. 2025
Збудовано
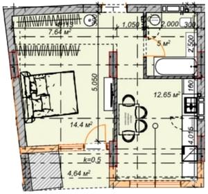
Продано
1 кімната
39.63 м²
Поверхи: 2-6
Секція 2
1 кв. 2023
Збудовано
Продано
1 кімната
41.21 м²
Поверхи: 2-7
Секція 4
3 кв. 2026
Будується
Продано
1 кімната
39.1-41.31 м²
Поверхи: 2-6
Секція 2
1 кв. 2023
Збудовано
Продано
1 кімната
41.69 м²
Поверхи: 2-7
Секція 4
3 кв. 2026
Будується
Продано
1 кімната
42.01 м²
Поверхи: 2-7
Секція 4
3 кв. 2026
Будується
Продано
1 кімната
43.5 м²
Поверхи: 2-7
Секція 4
3 кв. 2026
Будується
Продано
1 кімната
47.24 м²
Поверхи: 7
Секція 1
1 кв. 2023
Збудовано
Продано
1 кімната
55.5 м²
Поверхи: 2-7
Секція 4
3 кв. 2026
Будується
2-кімнатні квартири
Продано
2 кімнати
39 м²
Поверхи: 2-8
Секція 3
2 кв. 2025
Збудовано
Продано
2 кімнати
45.79 м²
Поверхи: 2-8
Секція 3
2 кв. 2025
Збудовано
Продано
2 кімнати
49.15 м²
Поверхи: 2-8
Секція 3
2 кв. 2025
Збудовано
Продано
2 кімнати
52.56 м²
Поверхи: 2-7
Секція 4
3 кв. 2026
Будується
Продано
2 кімнати
57.45 м²
Поверхи: 2-8
Секція 3
2 кв. 2025
Збудовано
Продано
2 кімнати
64.22-67.09 м²
Поверхи: 2-6
Секція 2
1 кв. 2023
Збудовано
3-кімнатні квартири
Продано
3 кімнати
64.62 м²
Поверхи: 2-8
Секція 3
2 кв. 2025
Збудовано
Продано
3 кімнати
83 м²
Поверхи: 2-6
Секція 2
1 кв. 2023
Збудовано
Продано
3 кімнати
84.03 м²
Поверхи: 7
Секція 1
1 кв. 2023
Збудовано
Продано
3 кімнати
86.29 м²
Поверхи: 7
Секція 1
1 кв. 2023
Збудовано
Найважливіші оновлення ЖК Набережний квартал
Акції, знижки та спецпропозиції
Нові фотографії з будівництва, аерообльоти
Оновлення цін від відділу продажу
Оновлення документів в реєстрах