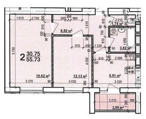
2-кімнатні квартири
Продано
2 кімнати
52.64-55.73 м²
Поверхи: 1-9
Будинок 7а-7б-7в (Секція 2)
4 кв. 2023
Збудовано
Продано
2 кімнати
53.39-57.27 м²
Поверхи: 1-9
Будинок 7а-7б-7в (Секція 3)
4 кв. 2023
Збудовано
Продано
2 кімнати
57.4 м²
Поверхи: 2-9
Будинок 7а-7б-7в (Секція 2)
4 кв. 2023
Збудовано
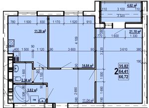
Продано
2 кімнати
66.72 м²
Поверхи: 1-9
Будинок 17
Будується
Продано
2 кімнати
66.72 м²
Поверхи: 1-9
Будинок 18б
Будується
Продано
2 кімнати
67.15 м²
Поверхи: 2-9
Будинок 4
3 кв. 2021
Збудовано
Продано
2 кімнати
72.98-73.13 м²
Поверхи: 2-9
Будинок 4
3 кв. 2021
Збудовано
Найважливіші оновлення ЖК Миру-3
Акції, знижки та спецпропозиції
Нові фотографії з будівництва, аерообльоти
Оновлення цін від відділу продажу
Оновлення документів в реєстрах