Новобудови
Продаж
Оренда
Мій ЛУН
Інше
Девелоперам: реклама на ЛУН
Рієлторам: розмістити оголошення
Власникам: розміщення через ЛУН додаток
Для ЗМІ
FAQ
Вакансії
Команда підтримки
грн
$
Iнші проєкти
від
грн
$
Безбарʼєрність та
комфорт міського
простору
Тренди та інсайти від
експертів нерухомості
Професійна рієлторська мережа
Застосунок оренди квартир на 3D-мапі
Нерухомість
Грузії
Спільнота девелоперів
житлових проєктів
Ми в соцмережах
Завантажити в
Завантажити в
ЖК Ланжерон
ЖК Ланжерон
Про проєкт
Квартири
NEW
Планування
Документи
Аерообліт 360
Новини
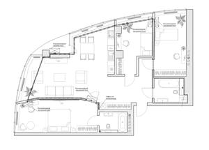
3-кімнатні квартири
Продано
3 кімнати
115.56 м²
1 кв. 2011
Житлові комплекси Одеси
Квартира в новобудові Приморського району
Преміум новобудови Одеси
Новобудови від забудовника Graf development
ЖК Ланжерон
Планування
Планування