Новобудови
Продаж
Оренда
Мій ЛУН
Інше
Завантажити в
Завантажити в
Девелоперам: реклама на ЛУН
Рієлторам: розмістити оголошення
Власникам: розміщення через ЛУН додаток
Для ЗМІ
FAQ
Вакансії
Команда підтримки
грн
$
Iнші проєкти
від
грн
$
Безбарʼєрність та
комфорт міського
простору
Тренди та інсайти від
експертів нерухомості
Професійна рієлторська мережа
Застосунок оренди квартир на 3D-мапі
Нерухомість
Грузії
Спільнота девелоперів
житлових проєктів
Ми в соцмережах
ЖК Жовтень
ЖК Жовтень
Про проєкт
Квартири
NEW
Планування
Моніторинг будівництва
Документи
Новини
1-кімнатні квартири
Продано
1 кімната
13.6 м²
Поверхи: 1-5
Будинок 1
4 кв. 2015
Збудовано
Продано
1 кімната
14.4 м²
Поверхи: 1-5
Будинок 1
4 кв. 2015
Збудовано
Продано
1 кімната
16.9-17.5 м²
Поверхи: 1-5
Будинок 1
4 кв. 2015
Збудовано
Продано
1 кімната
21.5-23.4 м²
Поверхи: 1-5
Будинок 1
4 кв. 2015
Збудовано
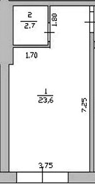
Продано
1 кімната
23.6 м²
Поверхи: 1-5
Будинок 1
4 кв. 2015
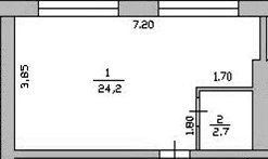
Збудовано
Продано
1 кімната
24.2-24.5 м²
Поверхи: 1-5
Будинок 1
4 кв. 2015
Збудовано
Продано
1 кімната
27-28.1 м²
Поверхи: 1-5
Будинок 1
4 кв. 2015
Збудовано
Новобудови у місті Бровари
Новобудови економ-класу
ЖК Жовтень
Планування
Планування