2-кімнатні квартири
Продано
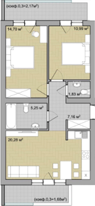
2 кімнати
60.23 м²
Поверхи: 2-4
Будинок 4 (Секція 2)
4 кв. 2025
Збудовано
Продано
2 кімнати
60.31 м²
Поверхи: 2-4
Будинок 4 (Секція 2)
4 кв. 2025
Збудовано
Найважливіші оновлення ЖК Долина Троянд
Акції, знижки та спецпропозиції
Нові фотографії з будівництва, аерообльоти
Оновлення цін від відділу продажу
Оновлення документів в реєстрах