Новобудови
Продаж
Оренда
Мій ЛУН
Інше
Девелоперам: реклама на ЛУН
Рієлторам: розмістити оголошення
Власникам: розміщення через ЛУН додаток
Для ЗМІ
FAQ
Вакансії
Команда підтримки
грн
$
Iнші проєкти
від
грн
$
Безбарʼєрність та
комфорт міського
простору
Тренди та інсайти від
експертів нерухомості
Професійна рієлторська мережа
Застосунок оренди квартир на 3D-мапі
Нерухомість
Грузії
Спільнота девелоперів
житлових проєктів
Ми в соцмережах
Завантажити в
Завантажити в
ЖК Водограй
ЖК Водограй
Про проєкт
Квартири
NEW
Планування
Моніторинг будівництва
Документи
Новини
1-кімнатні квартири
Продано
1 кімната
38.45-40.23 м²
Поверхи: 2-5
Будинок 2 (Секція 5)
4 кв. 2022
Збудовано
Продано
1 кімната
42.61 м²
Поверхи: 2-5
Будинок 2 (Секція 4)
4 кв. 2022
Збудовано
Продано
1 кімната
44 м²
Поверхи: 2-5
Будинок 2 (Секція 4)
4 кв. 2022
Збудовано
Продано
1 кімната
44.52 м²
Поверхи: 2-5
Будинок 2 (Секція 4)
4 кв. 2022
Збудовано
Продано
1 кімната
45.94-45.95 м²
Поверхи: 2-5
Будинок 2 (Секція 3)
4 кв. 2022
Збудовано
Продано
1 кімната
46.58 м²
Поверхи: 2-5
Будинок 2 (Секція 3)
4 кв. 2022
Збудовано
2-кімнатні квартири
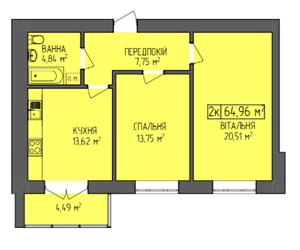
Продано
2 кімнати
64.96-67.88 м²
Поверхи: 2-5
Будинок 2 (Секція 5)
4 кв. 2022
Збудовано
Продано
2 кімнати
64-67.22 м²
Поверхи: 2-5
Будинок 2 (Секція 5)
4 кв. 2022
Збудовано
Продано
2 кімнати
65.22-67.7 м²
Поверхи: 2-5
Будинок 2 (Секція 3)
4 кв. 2022
Збудовано
3-кімнатні квартири
Продано
3 кімнати
87 м²
Поверхи: 2-5
Будинок 2 (Секція 3)
4 кв. 2022
Збудовано
Житлові комплекси Івано-Франківська
Житло комфорт-класу
Квартири від забудовника Франківський Дім
ЖК Водограй
Планування
Планування