Новобудови
Продаж
Оренда
Мій ЛУН
Інше
Завантажити в
Завантажити в
Девелоперам: реклама на ЛУН
Рієлторам: розмістити оголошення
Власникам: розміщення через ЛУН додаток
Для ЗМІ
FAQ
Вакансії
Команда підтримки
грн
$
Iнші проєкти
від
грн
$
Безбарʼєрність та
комфорт міського
простору
Тренди та інсайти від
експертів нерухомості
Професійна рієлторська мережа
Застосунок оренди квартир на 3D-мапі
Нерухомість
Грузії
Спільнота девелоперів
житлових проєктів
Ми в соцмережах
ЖК Версаль Парк
ЖК Версаль Парк
Про проєкт
Квартири
NEW
Планування
Моніторинг будівництва
Документи
Аерообліт 360
Новини
1-кімнатні квартири
Продано
1 кімната
31.79-35.84 м²
Поверхи: 1-14
Будинок 3 (Секція 1)
4 кв. 2017
Збудовано
Продано
1 кімната
36.55 м²
Поверхи: 1-14
Будинок 3 (Секція 1)
4 кв. 2017
Збудовано
Продано
1 кімната
36.2-37.66 м²
Поверхи: 1-14
Будинок 3 (Секція 1)
4 кв. 2017
Збудовано
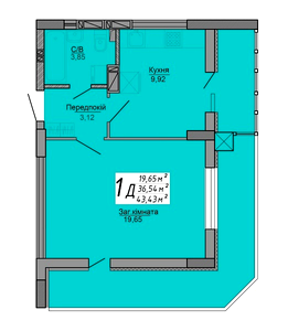
Продано
1 кімната
43.43 м²
Поверхи: 1-14
Будинок 3 (Секція 1)
4 кв. 2017
Збудовано
Продано
1 кімната
45.42 м²
Поверхи: 1-14
Будинок 3 (Секція 1)
4 кв. 2017
Збудовано
2-кімнатні квартири
Продано
2 кімнати
52.73-52.8 м²
Поверхи: 1-14
Будинок 3 (Секція 1)
4 кв. 2017
Збудовано
Продано
2 кімнати
56.3 м²
Поверхи: 1-14
Будинок 3 (Секція 1)
4 кв. 2017
Збудовано
Продано
2 кімнати
66.42 м²
Поверхи: 1-14
Будинок 3 (Секція 1)
4 кв. 2017
Збудовано
3-кімнатні квартири
Продано
3 кімнати
69.63 м²
Поверхи: 1-14
Будинок 3 (Секція 1)
4 кв. 2017
Збудовано
Продано
3 кімнати
70.05 м²
Поверхи: 1-14
Будинок 3 (Секція 1)
4 кв. 2017
Збудовано
Квартири в новобудовах Ірпеня
Новобудови бізнес-класу
Квартири від забудовника Linevich Group
ЖК Версаль Парк
Планування
Планування