Новобудови
Продаж
Оренда
Мій ЛУН
Інше
Завантажити в
Завантажити в
Девелоперам: реклама на ЛУН
Рієлторам: розмістити оголошення
Власникам: розміщення через ЛУН додаток
Для ЗМІ
FAQ
Вакансії
Команда підтримки
грн
$
Iнші проєкти
від
грн
$
Безбарʼєрність та
комфорт міського
простору
Тренди та інсайти від
експертів нерухомості
Професійна рієлторська мережа
Застосунок оренди квартир на 3D-мапі
Нерухомість
Грузії
Спільнота девелоперів
житлових проєктів
Ми в соцмережах
ЖК Варшавський-3
ЖК Варшавський-3
Про проєкт
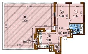
Планування
Шоу-рум
Моніторинг будівництва
Документи
Контакти
Новини
1-кімнатні квартири від
2.23 млн грн
50 тис. $
88 600 — 90 450 грн за м²
$ 2 000 — 2 040 за м²
1 кімната
31.4 м²
Поверхи: 2-15
Будинок 7.7 (Секція 2)
3 кв. 2025
Збудовано
71 050 — 72 450 грн за м²
$ 1 610 — 1 640 за м²
1 кімната
31.4 м²
Поверхи: 3-23
Будинок 10.8 (Секція 1)
3 кв. 2027
Будується
Контакти відділу продажу
Київ, вул. Всеволода Змієнка, 34/21
Відділ продажу
Пн - Пт:
10:00 - 19:00
Сб - Нд:
10:00 - 17:00
+38 044 ... Показати
Написати
Житло в новобудовах Києва
Квартира в новобудові Подільського району
Комплекси комфорт-класу
Забудовник Stolitsa Group
ЖК Варшавський-3
Планування
Найважливіші оновлення ЖК Варшавський-3
Акції, знижки та спецпропозиції
Нові фотографії з будівництва, аерообльоти
Оновлення цін від відділу продажу
Оновлення документів в реєстрах
Всі оновлення в додатку
Планування