1-кімнатні квартири від 2.99 млн грн
65 100 — 67 700 грн за м²
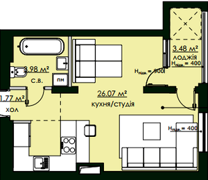
1 кімната
35.3 м²
Поверхи: 16
Будинок 4
2 кв. 2027
Будується
65 100 — 67 700 грн за м²
1 кімната
43.8 м²
Поверхи: 10
Будинок 3
2 кв. 2027
Будується
Найважливіші оновлення ЖК Бетховен
Акції, знижки та спецпропозиції
Нові фотографії з будівництва, аерообльоти
Оновлення цін від відділу продажу
Оновлення документів в реєстрах