Київ
Львів
Одеса
Вінниця
Дніпро
Житомир
Запоріжжя
Івано-Франківськ
Кропивницький
Луцьк
Миколаїв
Полтава
Рівне
Суми
Тернопіль
Ужгород
Харків
Херсон
Хмельницький
Черкаси
Чернівці
Чернігів
Так
Змінити місто
Головна
Новобудови
Продаж
Оренда
Мій ЛУН
Девелоперам: реклама на ЛУН
Рієлторам: розмістити оголошення
Власникам: розміщення через ЛУН додаток
Для ЗМІ
FAQ
Вакансії
Команда підтримки
грн
$
Iнші проєкти
від
грн
$
Безбарʼєрність та
комфорт міського
простору
Тренди та інсайти від
експертів нерухомості
Професійна рієлторська мережа
Застосунок оренди квартир на 3D-мапі
Нерухомість
Грузії
Спільнота девелоперів
житлових проєктів
Ми в соцмережах
Завантажити в
Завантажити в
Еко-поліс Оксамит
Еко-поліс Оксамит
Про проєкт
Типові проєкти
Аерообліт 360
Новини
2 фотографії
Еко-поліс Оксамит — Опал (з підвалом)
184.01 м²
Квадрекс
3 спальні
2 поверхи
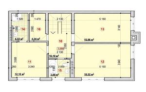
Планування
Цокольний поверх
1 поверх, гараж
2 поверх
Еко-поліс Оксамит
Інші проєкти цього КМ
Продано
Агат
2 спальні
89.45 м²
Таунхаус
2 поверхи
Продано
Агат (з підвалом)
2 спальні
129.54 м²
Таунхаус
2 поверхи
Продано
Сапфір
3 спальні
131.42 м²
Таунхаус
2 поверхи
Продано
Сапфір (з підвалом)
3 спальні
192.3 м²
Таунхаус
2 поверхи
Продано
Опал
3 спальні
126.78 м²
Квадрекс
2 поверхи
Продано
Смарагд
4 спальні
151.74 м²
Дуплекс
2 поверхи
Продано
Смарагд (з підвалом)
4 спальні
224.49 м²
Дуплекс
2 поверхи
Дивитись ще 3 проєкти