Київ
Львів
Одеса
Вінниця
Дніпро
Житомир
Запоріжжя
Івано-Франківськ
Кропивницький
Луцьк
Миколаїв
Полтава
Рівне
Суми
Тернопіль
Ужгород
Харків
Херсон
Хмельницький
Черкаси
Чернівці
Чернігів
Так
Змінити місто
Головна
Новобудови
Продаж
Оренда
Мій ЛУН
Девелоперам: реклама на ЛУН
Рієлторам: розмістити оголошення
Власникам: розмістити оголошення через додаток ЛУН
Для ЗМІ
FAQ
Вакансії
Команда підтримки
Iнші проєкти
від
Безбарʼєрність та
комфорт міського
простору
Тренди та інсайти від
експертів нерухомості
Професійна рієлторська мережа
Застосунок оренди квартир на 3D-мапі
Нерухомість
Грузії
сообщество девелоперов
жилых комплексов
Ми в соцмережах
Завантажити в
Завантажити в
Еко-поліс Оксамит
Еко-поліс Оксамит
Про проєкт
Типові проєкти
Аерообліт 360
Новини
2 фотографії
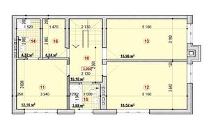
Еко-поліс Оксамит — Опал
126.78 м²
Квадрекс
3 спальні
2 поверхи
Планування
1 поверх
2 поверх
Еко-поліс Оксамит
Інші проєкти цього КМ
Продано
Агат
2 спальні
89.45 м²
Таунхаус
2 поверхи
Продано
Агат (з підвалом)
2 спальні
129.54 м²
Таунхаус
2 поверхи
Продано
Сапфір
3 спальні
131.42 м²
Таунхаус
2 поверхи
Продано
Сапфір (з підвалом)
3 спальні
192.3 м²
Таунхаус
2 поверхи
Продано
Опал (з підвалом)
3 спальні
184.01 м²
Квадрекс
2 поверхи
Продано
Смарагд
4 спальні
151.74 м²
Дуплекс
2 поверхи
Продано
Смарагд (з підвалом)
4 спальні
224.49 м²
Дуплекс
2 поверхи
Дивитись ще 3 проєкти