Київ
Львів
Одеса
Вінниця
Дніпро
Житомир
Запоріжжя
Івано-Франківськ
Кропивницький
Луцьк
Миколаїв
Полтава
Рівне
Суми
Тернопіль
Ужгород
Харків
Херсон
Хмельницький
Черкаси
Чернівці
Чернігів
Так
Змінити місто
Головна
Новобудови
Продаж
Оренда
Мій ЛУН
Девелоперам: реклама на ЛУН
Рієлторам: розмістити оголошення
Власникам: розмістити оголошення через додаток ЛУН
Для ЗМІ
FAQ
Вакансії
Команда підтримки
Iнші проєкти
від
Безбарʼєрність та
комфорт міського
простору
Тренди та інсайти від
експертів нерухомості
Професійна рієлторська мережа
Застосунок оренди квартир на 3D-мапі
Нерухомість
Грузії
сообщество девелоперов
жилых комплексов
Ми в соцмережах
Завантажити в
Завантажити в
Дуплекси Сонячний дім 2
Дуплекси Сонячний дім 2
Про проєкт
Типові проєкти
Контакти
Новини
2 фотографії
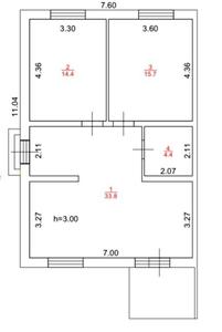
Дуплекси Сонячний дім 2 — Тип 3
Ціна проєкту
— 2.69 млн грн
— 64 000 $
Збудований:
від 2.69 млн грн
від 64 000 $
70 м²
Дуплекс
2 спальні
1 поверх
Відділ продажу
Дуплекси Сонячний дім 2
Планування
1 поверх
Дуплекси Сонячний дім 2
Відділ продажу
Пн - Сб:
09:00 - 18:00
Нд:
14:00 - 19:00
+38 093 ... Показати
Інші проєкти цього КМ
є збудовані
Тип 1
2.94 млн грн
70 000 $
4 спальні
110 м²
Дуплекс
2 поверхи
є збудовані
Тип 2
2.23 млн грн
53 000 $
3 спальні
75 м²
Таунхаус
2 поверхи
Найважливіші оновлення Дуплекси Сонячний дім 2
Акції, знижки та спецпропозиції
Статус будівництва, аерообльоти
Оновлення цін від відділу продажу
Нові типові проєкти
Щоденні оновлення в телеграм