2-кімнатні квартири від 2.79 млн грн
43 650 грн за м²
2 кімнати
63.2 м²
Поверхи: 1-11
Секція 1
3 кв. 2015
Збудовано
43 650 грн за м²
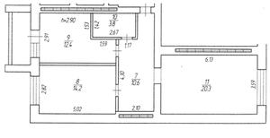
2 кімнати
69.2 м²
Поверхи: 1-11
Секція 1
3 кв. 2015
Збудовано
43 650 грн за м²
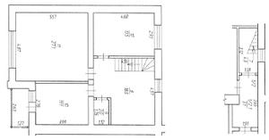
2 кімнати
82.3 м²
Поверхи: 1-11
Секція 1
3 кв. 2015
Збудовано
43 650 грн за м²
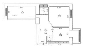
2 кімнати
82.4 м²
Поверхи: 1-11
Секція 1
3 кв. 2015
Збудовано
43 650 грн за м²
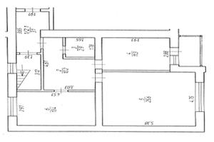
2 кімнати
86.6 м²
Поверхи: 1-11
Секція 1
3 кв. 2015
Збудовано
Найважливіші оновлення ЖК Rivbud
Акції, знижки та спецпропозиції
Нові фотографії з будівництва, аерообльоти
Оновлення цін від відділу продажу
Оновлення документів в реєстрах