Зараз 9:00 — хвилина мовчання
Будь ласка, зупинімось і вшануємо пам’ять усіх, хто загинув через війну росії проти України. Пам’ятаємо.
Новобудови
Продаж
Оренда
Мій ЛУН
Інше
Завантажити в
Завантажити в
Девелоперам: реклама на ЛУН
Рієлторам: розмістити оголошення
Власникам: розміщення через ЛУН додаток
Для ЗМІ
FAQ
Вакансії
Команда підтримки
грн
$
Iнші проєкти
від
грн
$
Безбарʼєрність та
комфорт міського
простору
Тренди та інсайти від
експертів нерухомості
Професійна рієлторська мережа
Застосунок оренди квартир на 3D-мапі
Нерухомість
Грузії
Спільнота девелоперів
житлових проєктів
Ми в соцмережах
вул. Героїв України, 4
вул. Героїв України, 4
Про проєкт
Квартири
NEW
Планування
Новини
2-кімнатні квартири
Продано
2 кімнати
56.67 м²
Поверхи: 1-10
Секція 1
1 кв. 2017
Збудовано
Продано
2 кімнати
59.35 м²
Поверхи: 1-10
Секція 2
1 кв. 2017
Збудовано
Продано
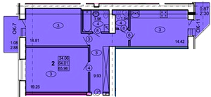
2 кімнати
65.96 м²
Поверхи: 1-10
Секція 2
1 кв. 2017
Збудовано
Усі ЖК Полтави
Новобудови Шевченківський район
Новобудови економ-класу
Новобудови від забудовника Полтавтрансбуд
вул. Героїв України, 4
Планування
Планування