Квартира з роздільним плануванням. В квартирі зроблений ремонт.
У квартирі встановлено двоконтурний котел, що забезпечує індивідуальне газове опалення.
Квартира може продаватися з меблями.
Квартира розташована в житловому фонді 80-90-х років.
Квартира має великий балкон.
2 кімнати
з ремонтом
54 / - / 9 м²
поверх 5 з 5
власник
1.4 млн грн
27 417 грн/м²
Скопіювати посилання
Поскаржитися
Продається двохкімнатна квартира з мебелью в Берегові,.Вселяйся й живи
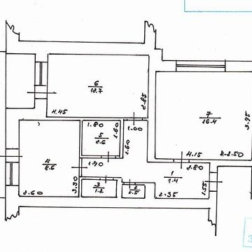
Квартира має хороше планування з функціональним простором. Планування суміжне, прохідне. Санвузол суміжний. У квартирі зроблено новий утеплений засклений балкон. Будинок має новий дах.
У квартирі встановлено індивідуальне газове опалення з двоконтурним котлом, який забезпечує опалення та підігрів води. Також є центральне водопостачання, водовідведення та каналізація. Встановлено насос наводу. Є лічильники на всі комунікації. Нові елементи системи електромережі (кабель електропроводки, щиток) та водопостачання (водопровідні труби, вузли, водопровідна та каційна труба). Електролічильник день-ніч.
В квартирі залишається вся мебель і побутова техніка. Є нова сантехніка.
Квартира розташована у спокійному районі у цегляному будинку. Прибудинкова територія озеленена. Двір тихий і спокійний.
В радіусі 200 метрів знаходяться ряд продовольчих маркетів, магазини промислових товарів, супермаркет "АТБ", будівельні магазини, автовокзал, відділення "Нової пошти", аптека, дитячий садок, дитячий майданчик, автомийки, банкомат. В радіусі 400 метрів - центральний міський стадіон із фітнес-центром та різними спортивними майданчиками, новозбудований спортивний комплекс з плавальним басейном. В радіусі 500 метрів - міська лікарня та поліклініка, ряд аптек, ресторанний комплекс "Ф-КОКА". В радіусі 900 метрів - амфітеатр, де проводяться масові міські заходи, ресторанний комплекс з винним дегустаційним залом "Чизац. Мала Гора".
Квартира тепла, без сирості. Інтерєр облаштований зі смаком. Покриття підлоги - ламінат, у ванній кімнаті - плитка. Складові частини квартири: коридор, ванна, кухня, дві кімнати, гардеробна, балкон. Є металеві та деревяні вхідні двері, деревяні міжкімнатні двері, пластикові вікна та балконні двері. Встановлено відеоспостереження. Доступний швидкісний інтернет, супутникове телебачення та Wi-Fi.
2 кімнати
з ремонтом
50 / - / 7 м²
цегляна
поверх 5 з 5
Задайте ціну для пошуку
Переглядайте лише ті об'єкти, що вам цікаві.
грн
грн
власник
1.8 млн грн
30 749 грн/м²
Скопіювати посилання
Поскаржитися
Берегове Продається 2-х кімнатна квартира в місті Берегове. ЖК н
Квартира з роздільним плануванням, зроблений євроремонт. Кімнати світлі, продовжені за рахунок балконів. У кухні підлога з підігрівом.
Квартира обладнана новим сантехнічним обладнанням. Опалення автономне індивідуальне газове з котлом. У квартирі є підігрів підлоги.
Квартира не мебльована, але є меблі на кухні.
Квартира розташована в житловому фонді 80-90-х років. Будинок обладнаний центральною каналізацією та центральним водопроводом. До будинку підїжджає асфальтована дорога. Є вивіз відходів.
Поруч розташовані садочок та магазин.
Квартира потребує ремонту, що дає можливість облаштувати житло повністю під себе.
Квартира має гараж, підвал та земельну ділянку площею 0,06 га, яку можна використовувати під сад, відпочинкову зону або господарські потреби.
Розташування в центрі міста забезпечує зручний доступ до магазинів, транспорту та всієї міської інфраструктури.
Квартира має роздільне планування. Санвузол роздільний. Зроблено косметичний ремонт.
Встановлено індивідуальне газове опалення. Квартира підключена до центральної каналізації, електрики, вивозу відходів, газу та центрального водопроводу.
Квартира повністю мебльована, зокрема є меблі на кухні. Також є телевізор та можливість підключення кабельного та цифрового ТБ.
Тип будинку - житловий фонд 80-90-х років. Є паркувальне місце.
До квартири веде асфальтована дорога.