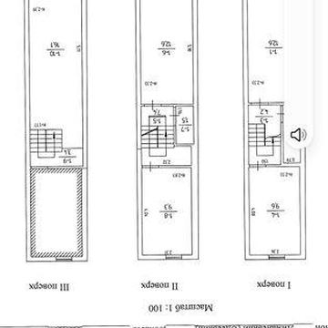
Будинок з цегли. На першому поверсі розташовані прохідна кухня, зал та дві окремі спальні. Залізні сходи ведуть на другий поверх, де знаходяться ще дві кімнати. Будинок у житловому стані.
У будинку є світло та вода. Газ проходить по межі ділянки. Опалення печне, труба проходить через другий поверх.
Будинок мебльований.
Продаж.
На ділянці площею 6 соток розташований будинок з підвалом під всією площею. Також є льох, літній туалет, душ, господарський блок, плодовий сад і виноградна арка. На вікнах встановлені грати.
Будинок знаходиться в мальовничому місці поблизу озера. Можлива риболовля.
Будинок має цоколь. Ділянка огорожена. Є сад і город.
Крепкий будинок з високим цокольним поверхом, який зручний як гараж і підсобне приміщення. Є літня кухня з прибудованою вбиральнею зі зливом.
У будинку пічне опалення, деревяні підлоги. Є колодязь (кільця 1,2 м, глибина 10 м) та балонний газ.
Будинок узаконенний.
Ділянка добре огорожена, є держакт.
В будинку є 2 окремі кімнати, прохідна кухня та коридор. На кухні є погреб/підвал. На першому поверсі перед входом є веранда, яку можна засклити. Другий поверх/мансарда має окремий вхід.
Є світло, вода та колодязь.
Будинок розташований на тилигульському лимані. Поблизу знаходиться сосновий ліс. Від Одеси будинок віддалений на 60 км.
Будинок не вимагає додаткових вкладень. Стіни обшиті деревяною вагонкою. У будинку є суміжний санвузол з туалетом та душем. Зроблений косметичний ремонт.
Є світло, вода та бройлер. Опалення індивідуальне електро. Каналізація септик. Центральний водопровід.
Залишаються вбудовані меблі. Решта за домовленістю.
Пропонується до продажу.
Будинок-дача розташований на причалі. Територія охороняється, встановлено відео спостереження. Є свій закритий пляж. На території передбачені стоянки для автотранспорту та човнів.
У 5 хвилинах ходьби знаходиться магазин, у 10 - зупинка транспорту.
Відмінний варіант для літнього відпочинку біля моря. Є можливість добудувати третій поверх.
Будинок побудований у 1996 році. Є підвал, гараж, ветхі споруди. Санвузол розташований у дворі. Стан ремонту - житловий.
Є світло, вода (потрібно прочистити артезіанську свердловину). Опалення печне.
Можливий обмін на автомобіль або кімнату в комунальній квартирі. Можливий варіант першого внеску з подальшою розстрочкою. Всі документи є.
У будинку більше 10 років ніхто не живе.
Тиха та спокійна місцевість. У 7 км від будинку розташована Київська траса. Школа, магазин та сільська рада знаходяться на одній вулиці. Є великий родючий город, де можна зробити теплицю. Поблизу протікає річка.
Квартира з хорошим ремонтом. Є кухня з терасою та виходом для лодки, 2 кімнати з терасою та 2 санвузли.
У квартирі залишається вбудована кухня, посудомийна та пральна машини, 2 бойлери, 4 кондиціонери.
При продажі залишається все вбудоване обладнання та техніка.
Є власний пляж перед будинком. Є бак на 5 кубів та запасний бак на 1 куб для води. Є власна стоянка під машину біля будинку. Підїзд плитковий, чистий та сухий. Є моторний човен.
Є асфальтована дорога.
Є мультимедіа (Wi-Fi). Квартира має кондиціонер, душ, терасу, сигналізацію, відеоспостереження. Територія охороняється та має огорожу. У квартирі встановлено центральний водопровід та каналізацію септик. Є вивіз відходів.
Триповерховий будинок у рівнях. На першому поверсі розташовані кухня та 4 кімнати. Є 2 санвузли, 2 міцних забетонованих підвали у землі, душова кабінка. Потрібна маленька косметика.
Є всі комунікації: вода, світло, септик на 4 тонни, інтернет. Індивідуальне електроопалення.
Залишається частково меблі, кухонний гарнітур.
Повний пакет документів з правом власності. Акт постійного користування землею (безстроковий). Продаж від власника.
Закрита територія. Безкоштовна стоянка під цілодобовим наглядом, відеоспостереження.
До центру 14 км. До моря 2 хвилини.
На першому поверсі влітку прохолодно. Є свій двір з мангалом. Вид на затоку з 2 та 3 поверхів.
Будинок побудований з розпиленого каменю ракушняка та облицьований білим силікатним цеглою. У будинку є 2 і більше санвузлів.
Є всі комунікації: вода, газ, електрика. Опалення індивідуальне газове.
Реальному покупцеві, який готовий купити будинок, реальний торг і договірна ціна.
На території будинку є ще один маленький будинок, сараї, два підвали, сад, город.
У трьох хвилинах від будинку розташовані школа, дитячий садок, центр села з ринком.
Будинок цегляний з залізобетонними плитами перекриттів. У будинку є роздільний санвузол, підвал, балкон, цоколь. Будинок у житловому стані.
Будинок підключений до центрального водопроводу та електрики. На ділянці є колодязь, великі ємності для води. Каналізація - септик.
Будинок мебльований.
Ділянка приватизована.
Земельна ділянка площею 6 соток. На ділянці розташований 2-поверховий камяний будинок, гараж, плодовий сад, город. Ділянка огорожена. На вікнах встановлені грати.
Масив розташований біля Тилигульського лиману на високому плато (+60м над рівнем моря). Дільницю оточують лісосмуга, сосновий бор та лиман. До лиману 10 хвилин.
На ділянці є водопровід, світло, колодязь, великі ємності для води. Вивіз сміття організований. Система опалення комбінована.
4 кімнати
з ремонтом
129 м²
цегляна
2-поверховий будинок
1.1 млн грн
13 120 грн/м²
Скопіювати посилання
Поскаржитися
Загородный дом-дача с отоплением под Одессой с землей и садом
Капітальний будинок з житловим станом.
Опалення твердопаливним котлом, є електрика. Вода та санвузол знаходяться в будинку.
У будинку є меблі.
Є повний пакет документів: державний акт, кадастровий номер під будівництво та обслуговування будинку.
У пішій доступності знаходяться хороша школа, дитячий садок, відділення Нової пошти. До найближчого магазину та аптеки - 500 м. До автобусної зупинки - 400 м. Маршрутне таксі Петрово-Одеса. До залізничної станції - 3,5 км.
Будинок побудований з ракушняка. На ділянці є сад та город.