Продаж 3-кімнатних квартир мкр. Скнилівок, Львів
3 оголошення по 3 квартирах
9.6 млн грн
74 764 грн/м²
Щирецька вулиця, Будинок 1
Скопіювати посилання
Поскаржитися
Продаж красивої квартири з терасою!
✅ 3-кімнатна квартира 129 м²
✅ Велика тераса з керамогранітом та склом
✅ Власне паркомісце входить у вартість!
✅ Двостороннє планування (південь/захід), світло і простір.
Велика світла квартира з індивідуальним газовим опаленням. Встановлені радіатори в квартирі. Будинок БІЗНЕС КЛАСУ!
Поруч парк, розвинена інфраструктура. Поблизу ринок «Південний», ТЦ Victoria Garden, кінотеатр, зручна транспортна розвʼязка.
💫 Відчуйте себе власником будинку у місті!
3 кімнати
без ремонту
129 / 53 / 13 м²
монолітно-каркасна
поверх 6 з 6
2024 Рік будівництва
5.6 млн грн
67 968 грн/м²
Щирецька вулиця, 30
Скопіювати посилання
Поскаржитися
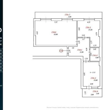
Це унікальна багатофункціональна євро-трійка-трансформер у ЖК Quorum Avenue. Формат квартири дозволяє створити будь-яке планування під потреби сімї, з можливістю розміщення кухні у двох різних приміщеннях. Квартира двостороння, що забезпечує багато світла та свіжого повітря. Наповнення квартири включає стяжку по всій площі, штукатурку стін, встановлені вхідні двері та якісні вікна. До оголошення додається 9 можливих варіантів перепланування та розташування меблів. Квартира має велику кухню-студію 32,50 м², дві окремі спальні (17,5 м² та 14,3 м²) та два балкони.
Квартира має центральне опалення, централізоване гаряче водопостачання та газ. Встановлені лічильники.
Інформація про меблі та техніку не надана.
Можливість придбання за програмою "єОселя". Відсутні комісії та зайві витрати.
Сучасний комплекс комфорт-класу Q-4 "Quoroom Avenue" складається з шести секцій різної поверховості. Комплекс має закриту територію, монолітно-каркасну технологію будівництва, зовнішні стіни з керамічної цегли та сучасні ліфти. Передбачено підземний та гостьовий паркінг.
Житловий комплекс розташований у затишному районі з розвиненою інфраструктурою. Поруч знаходяться торговий центр Victoria Gardens, ринок "Південний", а також забезпечено зручний виїзд у будь-яку частину міста.
Квартира має панорамні вікна, балкон та лоджію. Передбачено підігрів підлоги та можливість встановлення кондиціонерів. Вхідні двері броньовані.
3 кімнати
без ремонту
81.9 / - / 32.5 м²
цегляна
поверх 7 з 7
2024 Рік будівництва
Задайте ціну для пошуку
Переглядайте лише ті об'єкти, що вам цікаві.
грн
грн
9.1 млн грн
70 160 грн/м²
Щирецька вулиця, 23
Скопіювати посилання
Поскаржитися
Продаж 4-кімнатної квартири з власною терасою. Планування квартири не вказано. Стан ремонту не вказано.
Квартира має індивідуальне газове опалення.
Житловий комплекс Skyfall.
Квартира має власну терасу площею 75 метрів.
3 кімнати
без ремонту
130 м²
поверх 5 з 9
2024 Рік будівництва