🏠 Продається квартира БЕЗ КОМІСІЇ для покупця! 😄
📍 Софіївська Борщагівка, вул. Боголюбова, 25, ЖК Городок
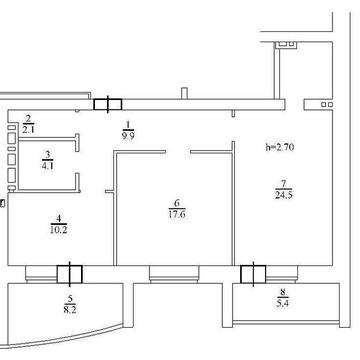
📐 43 м² | 🏢 3 поверх із 12 | 🧱 Цегляний будинок (не той, що в казці, але надійний!)
🔑 Що вас чекає?
— Світла 1-кімнатна квартира з цікавим плануванням, а не тим, що "все як у людей".
— Лоджія з кухні — можна і каву пити, і за сусідами спостерігати (без підозри).
— Санвузол — 5,8 м² розкоші, де можна танцювати з рушником.
— Бойлер — працює, гріє і не жаліється.
— Тамбур на 2 квартири, з приємними сусідами!
-- ОСББ працює — будинок доглянутий
🌳 Інфраструктура:
Школа — через дорогу, дитина буде вдома швидше, ніж ви з супермаркету
Дитсадок і маршрутка — прямо під вікнами (але не кричать)
АТБ, Сільпо, Фора — усі готові до ваших вечірніх набігів за смаколиками
Нова пошта в будинку — посилка прийшла, вже можна в піжамі йти забирати
До Києва — 15 хв на маршрутці або 25 хв пішки (але краще на маршрутці 😄)
🎯 Якщо шукаєте теплу, затишну, не нудну квартиру — ви її щойно знайшли!
📞 Телефонуйте, домовимось про перегляд! А потім ще й чай вип’ємо на лоджії 😉
Квартира з роздільним плануванням. Оздоблення підготовлене до ремонтних робіт: рівна підлога (стяжка), стіни (машинна штукатурка), здійснена розводка електричної мережі (мідь), розводка опалення, протипожежна сигналізація. Санвузол роздільний.
Опалення - кришна котельня на будинку. Будинок обслуговує ОСББ. Є центральний водопровід, газ, електрика.
Вартість вказана із розрахунку 100%% оплати. Можливий готівковий/безготівковий розрахунок. Співпрацюємо по програмі єОселя, єВідновлення та іншими програмами державного та банківського кредитування. Готові співпрацювати з рієлторами.
Будинок цегляний, новий, побудований у 2011-2020-і роки. Є ліфт та вантажний ліфт.
Поруч розташовані парк, школа, зупинка громадського транспорту, дитячий майданчик, побутові заклади та заклади громадського харчування.
Квартира без меблів та мультимедіа.
Квартира з роздільним плануванням. Стіни підготовлені до поклейки шпалер або фарбування. Підлога з ламінату. Відкоси утеплені. У ванній кімнаті, санвузлі та на балконі підлога викладена керамічною плиткою. Встановлені радіатори.
Опалення здійснюється від дахової котельні. Встановлена розводка електричної мережі з мідним дротом, вимикачі та протипожежна сигналізація.
У ванній кімнаті встановлені ванна, унітаз, рукомийник та змішувачі.
Ціна вказана із розрахунку 100%% оплати. Працюємо з усіма програмами по державному та банківському кредитуванню.
Підїзд оснащений кодовим замком та протипожежною системою.
Поблизу розташовані парк, школа, зупинка громадського транспорту, дитячий майданчик, побутові заклади та заклади громадського харчування.
Стіни чистово оштукатурені.
Квартира має сучасний ремонт, який тільки завершений. Планування включає дві просторі кімнати, великий коридор та додатковий передпокій для зберігання верхнього одягу та взуття. Санвузол роздільний.
Квартира повністю мебльована, є меблі на кухні. Також є мультимедіа, зокрема супутникове ТБ, швидкісний інтернет, телевізор та Wi-Fi. Для комфорту встановлено кондиціонер та ванну.
Будинок 2015 року побудови. У підїзді два ліфти. Є достатньо паркомісць. Житловий комплекс вже обжитий.
Поблизу є вся розвинена інфраструктура для комфортного життя, включаючи державну школу та ліцей, магазини, кавярні. ЖК "Софія" з інфраструктурою знаходиться неподалік.
Квартира має хороші комунікації, зокрема асфальтовану дорогу, центральну каналізацію, електрику та центральний водопровід.