Продаж квартир у кредит, розстрочку чи іпотеку Гнідин
3 оголошення по 3 квартирах
власник
1.5 млн грн
25 648 грн/м²
Скопіювати посилання
Поскаржитися
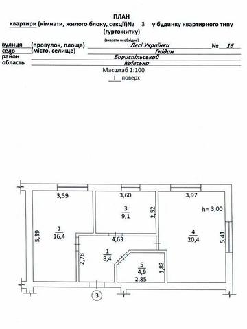
Квартира має роздільне планування. На даний момент виконане чорнове оздоблення, що включає штукатурку несучих стін, стяжку та встановлення вхідних дверей. Є можливість замовити послуги з фінішного оздоблення та комплектації меблями.
Опалення в квартирі автономне електричне, з електричним конвектором у кожній кімнаті. Водопостачання здійснюється від власної свердловини, а гаряча вода подається від бойлера. Каналізація – септик зі ступенем очищення 98%% та дренажним полем.
Меблювання відсутнє.
Можлива розстрочка: при купівлі квартири з ремонтом, 50%% вартості оплачуються одразу та 50%% після закінчення ремонтних робіт. Вартість квартири з ремонтом становить 940$/м2 (55650$).
Будинок цегляний/газобетонний, утеплений 100 мм. Вікна металопластикові з подвійним склопакетом та енергозберігаючим склом. Територія будинку окрема, закрита. Передбачено дитячий майданчик, альтанка для відпочинку та зелена зона. На першому поверсі є місця для дитячих колясок та велосипедів. Також за квартирою закріплене парко місце.
Неподалік від будинку розташовані озеро, пляж та лісові насадження. Центр села знаходиться за 10 хвилин ходьби. Район забудований переважно приватними котеджами.
Відмінне місце для життя за містом. Квартира розташована на першому поверсі чотириповерхового будинку.
2 кімнати
без ремонту
59.2 / - / 20.4 м²
поверх 3 з 4
782 тис. грн
22 344 грн/м²
Скопіювати посилання
Поскаржитися
Нежитловий фонд, який можна перевести в житловий. Є можливість розділити на дві смарт-квартири. Зроблено стяжку.
Проведена електрика, є дві мокрі точки. Центральна каналізація, електрика, вивіз відходів, центральний водопровід, свердловина.
Можлива розстрочка.
Будинок до 1917 року з товстими бетонними стінами. На вхідних дверях встановлений електронний замок, який управляється через телефон. Приватна територія оточена парканом. На території є міні-маркет, аптека, пошта, ресторан, дитячий садок.
Поблизу розташовані велике озеро та ліс. До метро 5,5 км.
Квартира має броньовані двері.
1 кімната
без ремонту
35 / - / 15 м²
поверх 1 з 5
Задайте ціну для пошуку
Переглядайте лише ті об'єкти, що вам цікаві.
грн
грн
власник
1.4 млн грн
25 604 грн/м²
Скопіювати посилання
Поскаржитися
Планування квартири роздільне. Ремонт після будівельників, виконано чорнове оздоблення (штукатурка несучих стін, стяжка, встановлення вхідних дверей). Можливе виконання послуг з фінішного оздоблення та комплектації меблями.
Опалення автономне електричне (електричний конвектор в кожній кімнаті). Водопостачання – власна свердловина, гаряча вода – від бойлеру, каналізація – септик зі ступенем очищення 98 %% та дренажним полем. Будинок – цегла/газобетон, утеплення – 100 мм.
Меблювання: Ні. Без мультимедіа.
Ціна квартири з ремонтом = 940$/м2 (51000$). Можлива розстрочка: при купівлі квартири з ремонтом, 50%% вартості оплачуються одразу та 50%% після закінчення ремонтних робіт.
Будинок чотириповерховий, 16-ти квартирний. На першому поверсі – місця для дитячих колясок та велосипедів. Окрема, закрита територія. У дворі передбачено парко місце, закріплене саме за цією квартирою. Дитячий майданчик, альтанка для відпочинку, зелена зона.
Неподалік від будинку озеро, пляж, лісові насадження. За 10 хвилин ходьби знаходиться центр села. Цей район забудований переважно приватними котеджами.
Вікна – металопластикові з подвійним склопакетом та енергозберігаючим склом. Відмінне місце для життя за містом!
2 кімнати
без ремонту
54.3 / - / 13 м²
цегляна
поверх 1 з 4