Продаж двокімнатних квартир мкр. Боржом, Дніпро
8 оголошень по 6 квартирах
1.2 млн грн
22 315 грн/м²
Янтарна вулиця, 42
Скопіювати посилання
Поскаржитися
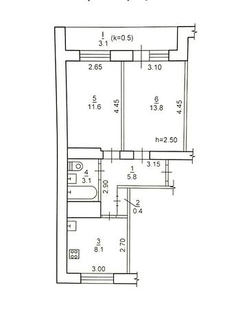
Продам 2-к квартиру на ж/м Лівобережний, вулиця Янтарна.
Поверх 8/9
Загальна площа: 54 м2.
Квартира не кутова, дуже тепла.
Замінені вікна металопластикові, труби, встановлений кондиціонер.
Все інше під ремонт.
Кімнати та санвузол- роздільні.
Будинок ОСББ. Доглянутий чистий двір та підʼїзд.
Поруч знаходиться вся інфраструктура, Атб, ринок, магазини, транспортна зупинка, школи .
Ціна 27 000 $
Перегляд у зручний для вас час, телефонуйте!
2 кімнати
без ремонту
54 / 38 / 8 м²
панельна
поверх 8 з 9
1998 Рік будівництва
2.5 млн грн
43 069 грн/м²
вулиця Данила Заболотного, 6
Скопіювати посилання
Поскаржитися
Квартира з капітальним ремонтом. Є балкон та лоджія. Площа кухні - 10 кв.м.
Квартира продається з меблями та технікою, які включені у вартість.
Квартира розташована в цегляній багатоповерхівці. Є ліфт та консьєрж.
Поблизу розташовані Слобожанський (Газети Правда), Калнишевського (Косіора), Калиновський (Клочко-6), Лівобережний 1, 2, 3, Ковалевської (Галини Мазепи), Тютюнника (Малишева), Образцова.
Квартира не кутова. Є кондиціонер.
2 кімнати
з ремонтом
57 / - / 10 м²
поверх 11 з 16
Задайте ціну для пошуку
Переглядайте лише ті об'єкти, що вам цікаві.
грн
грн
1.8 млн грн
25 484 грн/м²
пров. Крушельницької, 5б
Скопіювати посилання
Поскаржитися
Квартира має вільне планування та стан після будівельників. Санвузол суміжний.
Система опалення індивідуальна електрична. Централізоване водопостачання, каналізація, електрика. Є вивіз відходів. Асфальтована дорога.
Меблювання відсутнє.
Угода - переуступка прав з забудовником.
Будинок побудований, внутрішні роботи на завершальній стадії. Тип будинку: Житловий фонд від 2021 р. На поверсі лише 3 квартири. Є ліфт, вантажний ліфт, гостьовий паркінг, господарське приміщення, комора, тераса.
Поряд велика тераса.
Квартира видова, з панорамними вікнами. Є балкон, лоджія, пожежна сигналізація.
2 кімнати
без ремонту
70 / - / 12 м²
цегляна
поверх 10 з 10
1.8 млн грн
39 186 грн/м²
вулиця Данила Заболотного, 6
Скопіювати посилання
Поскаржитися
Квартира не кутова з роздільними кімнатами. У кухні та вітальні зроблено ремонт. Встановлено металопластикові вікна, замінені труби. Лоджія засклена та утеплена. На підлозі ламінат і плитка. Двері з натурального дерева.
У квартирі залишаються всі меблі та техніка.
Документи готові.
Квартира розташована в житловому фонді 80-90-х років. Будинок оснащений ліфтом.
У кроковій доступності знаходяться торговельні та розважальні центри, ринок, дитячий садок, школи та транспорт.
Квартира має суміжний санвузол, балкон, ванну та кондиціонер. У квартирі є швидкісний інтернет.
2 кімнати
з ремонтом
45 / - / 8 м²
поверх 8 з 9
2.2 млн грн
51 906 грн/м²
вулиця Данила Заболотного, 6
Скопіювати посилання
Поскаржитися
Квартира має спецпроект. Виконано капітальний євроремонт. Є балкон/лоджія. Квартира не кутова.
Квартира має автономне опалення. Є асфальтована дорога та вивіз відходів.
У вартість квартири включено меблі, техніку та дизайн-проект.
Квартира розташована в новобудові з цегляними стінами.
Поблизу розташовані Калиновський (Клочко-6), Лівобережний 1, 2, 3, Калинова, Донецьке Шосе, Лисиченко, Старочумацька (Байкальська), Крушельницької та Янтарна.
Квартира має кондиціонер та душову кабіну.
2 кімнати
з ремонтом
43 / - / 26 м²
поверх 2 з 5
2.1 млн грн
31 242 грн/м²
вулиця Мольєра, 77
Скопіювати посилання
Поскаржитися
Квартира розташована на 3 поверсі 6-поверхового будинку. Це двостороння, не кутова квартира з 2 лоджіями. Стан квартири - після будівельників, виконано стяжку, оштукатурено стіни. Встановлено броньовані двері та металопластикові вікна з 3 камерами.
Будинок повністю електричний, з індивідуальним електричним опаленням (електрокотел, підлога з підігрівом). Встановлено 2-тарифний лічильник день/ніч.
Є можливість придбати квартиру через програму Е-оселя.
ЖК Левобережний - це сучасний малоквартирний 6-поверховий будинок на 2 підїзди з сучасним тихохідним ліфтом. Будинок введений в експлуатацію, побудований з силікатної цегли, утеплений мінватою та пінополістиролом. Двір закритий та тихий, з двома вїздами на автоматичних воротах. На території комплексу є крита парковка (купується окремо), охорона, відеоспостереження, зона відпочинку та дитячий майданчик. На першому поверсі є сховища (купуються окремо).
Розташований у тихому та затишному місці, за 5-10 хвилин від будинку знаходиться вся необхідна інфраструктура: дитячі садки, школи, супермаркети, ринок, пошта.
2 кімнати
без ремонту
65.7 / 41.2 / 15 м²
цегляна
поверх 3 з 6
2023 Рік будівництва