Premium Space — Тип 4

Цена проекта от 5.09 млн грн
Строится:  5.09 млн грн
134.1 м²
Таунхаус
3 спальни
2 этажа
Отдел продаж
Premium Space
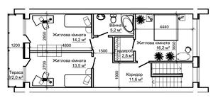
Планировки
1 этаж
2 этаж
Premium Space
Отдел продаж
Пн - Пт: 10:00 - 18:00
Сб: 10:00 - 14:00
Вс: выходной
Другие проекты этого КГ
Тип 1
Тип 1
от 3.29 млн грн
2 спальни
79.9 м²
Таунхаус
2 этажа
Тип 2
Тип 2
от 3.73 млн грн
2 спальни
96.1 м²
Таунхаус
2 этажа
Тип 3
Тип 3
от 4.39 млн грн
3 спальни
114.9 м²
Таунхаус
2 этажа
Тип 1
Тип 1
от 6.23 млн грн
3 спальни
157.4 м²
Дуплекс
3 этажа
Самые важные обновления Premium Space
Акции, скидки и спецпредложения
Статус строительства, аэрооблеты
Обновления цен от отдела продаж
Новые типовые проекты
Це російськомовна версія
Інколи пошукові системи вважають, що користувачам потрібна саме вона, але завдяки цьому повідомленню ви можете змінити мову в один клік
Українською