Киев
Львов
Одесса
Винница
Днепр
Житомир
Запорожье
Ивано-Франковск
Кропивницкий
Луцк
Николаев
Полтава
Ровно
Сумы
Тернополь
Ужгород
Харьков
Херсон
Хмельницкий
Черкассы
Чернигов
Черновцы
Да
Изменить город
Главная
Новостройки
Продажа
Аренда
Мій ЛУН
Девелоперам: реклама на ЛУН
Риелторам: разместить объявление
Собственникам: разместить объявление через приложение ЛУН
Для СМИ
FAQ
Вакансии
Команда поддержки
Другие проекты
от
Безбарьерность и
комфорт городского
пространства
Тренды и инсайты от
экспертов недвижимости
Профессиональная риелторская сеть
Приложение для аренды квартир на 3D карте
Недвижимость
Грузии
сообщество девелоперов
жилых комплексов
Мы в соцсетях
Скачать в
Скачать в
КГ Green Estate
КГ Green Estate
О проекте
Типовые проекты
Новости
КГ Green Estate — Тип 2
Цена проекта
— 4.41 млн грн
— 105 000 $
Построен:
от 4.41 млн грн
от 105 000 $
Строится:
4.41 млн грн
105 000 $
143.09 м²
Коттедж
3 спальни
2 этажа
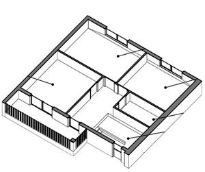
Планировки
1 этаж
2 этаж
КГ Green Estate
+38 050 ... Показать
Другие проекты этого КГ
есть построенные
Тип 1
3.36 млн грн
80 000 $
3 спальни
106.84 м²
Коттедж
2 этажа
есть построенные
Тип 3
3.36 млн грн
80 000 $
3 спальни
117.39 м²
Коттедж
2 этажа
есть построенные
Тип 4
3.36 млн грн
80 000 $
3 спальни
117.39 м²
Коттедж
2 этажа
есть построенные
Тип 5
3.99 млн грн
95 000 $
3 спальни
124.51 м²
Коттедж
2 этажа
Самые важные обновления КГ Green Estate
Акции, скидки и спецпредложения
Статус строительства, аэрооблеты
Обновления цен от отдела продаж
Новые типовые проекты
Ежедневные обновления в телеграм
Це російськомовна версія
Інколи пошукові системи вважають, що користувачам потрібна саме вона, але завдяки цьому повідомленню ви можете змінити мову в один клік
Російською
Українською