ул. Стадниковой, 41 — Тип 1

Цена проекта — 2.65 млн грн
Построен:  от 2.65 млн грн
106 м²
Таунхаус
3 спальни
2 этажа
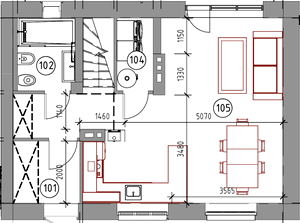
Планировки
1 этаж
2 этаж
ул. Стадниковой, 41
Самые важные обновления ул. Стадниковой, 41
Акции, скидки и спецпредложения
Статус строительства, аэрооблеты
Обновления цен от отдела продаж
Новые типовые проекты
Це російськомовна версія
Інколи пошукові системи вважають, що користувачам потрібна саме вона, але завдяки цьому повідомленню ви можете змінити мову в один клік
Українською