Киев
Львов
Одесса
Винница
Днепр
Житомир
Запорожье
Ивано-Франковск
Кропивницкий
Луцк
Николаев
Полтава
Ровно
Сумы
Тернополь
Ужгород
Харьков
Херсон
Хмельницкий
Черкассы
Чернигов
Черновцы
Да
Изменить город
Главная
Новостройки
Продажа
Аренда
Мій ЛУН
Девелоперам: реклама на ЛУН
Риелторам: разместить объявление
Собственникам: разместить объявление через приложение ЛУН
Для СМИ
FAQ
Вакансии
Команда поддержки
Другие проекты
от
Безбарьерность и
комфорт городского
пространства
Тренды и инсайты от
экспертов недвижимости
Профессиональная риелторская сеть
Приложение для аренды квартир на 3D карте
Недвижимость
Грузии
сообщество девелоперов
жилых комплексов
Мы в соцсетях
Скачать в
Скачать в
ЖК Виктория Парк
ЖК Виктория Парк
О проекте
Планировки
Документы
Контакты
Новости
1-комнатные квартиры
Продано
1 комната
44.94 м²
Этажи: 7
2 кв. 2025
Построено
2-комнатные квартиры
Продано
2 комнаты
55.22 м²
Этажи: 6
2 кв. 2025
Построено
Продано
2 комнаты
55.91 м²
Этажи: 9
2 кв. 2025
Построено
Продано
2 комнаты
56.4 м²
Этажи: 9
2 кв. 2025
Построено
Продано
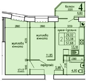
2 комнаты
57.68 м²
Этажи: 3
2 кв. 2025
Построено
Продано
2 комнаты
57.72 м²
Этажи: 6-8
2 кв. 2025
Построено
Продано
2 комнаты
58.73 м²
Этажи: 3, 5-6, 8
2 кв. 2025
Построено
Продано
2 комнаты
59.21 м²
Этажи: 8
2 кв. 2025
Построено
Новостройки Кременца
Застройщик КременецьБуд
ЖК Виктория Парк
Планировки
Самые важные обновления ЖК Виктория Парк
Акции, скидки и спецпредложения
Новые фотографии со строительства, аэрооблеты
Обновления цен от отдела продаж
Обновление документов в реестрах
Ежедневные обновления в телеграм
Планировка
Це російськомовна версія
Інколи пошукові системи вважають, що користувачам потрібна саме вона, але завдяки цьому повідомленню ви можете змінити мову в один клік
Російською
Українською