ул. Солнечная, 43

ул. Солнечная, 43 — Тип 2

Цена проекта от 5.95 млн грн
Строится:  5.95 млн грн
125.72 м²
Дуплекс
4 спальни
2 этажа
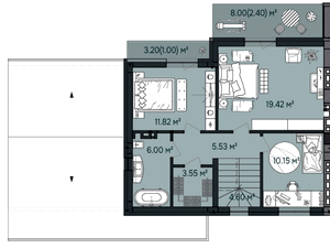
Планировки
1 этаж
2 этаж
ул. Солнечная, 43
Другие проекты этого КГ
Тип 3
Тип 3
от 5.95 млн грн
3 спальни
125.72 м²
Дуплекс
2 этажа
Самые важные обновления ул. Солнечная, 43
Акции, скидки и спецпредложения
Статус строительства, аэрооблеты
Обновления цен от отдела продаж
Новые типовые проекты
Це російськомовна версія
Інколи пошукові системи вважають, що користувачам потрібна саме вона, але завдяки цьому повідомленню ви можете змінити мову в один клік
Українською