КГ ForRest village — Дом 4

166.31 м²
Таунхаус
3 спальни
2 этажа
Отдел продаж
КГ ForRest village
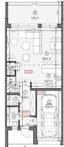
Планировки
1 этаж, гараж
2 этаж
КГ ForRest village
Отдел продаж
Пн - Пт: 09:00 - 18:00
Сб - Вс: выходной
Другие проекты этого КГ
Тип 1
Тип 1
от 7.98 млн грн
4 спальни
168.83 м²
Дуплекс
2 этажа
Самые важные обновления КГ ForRest village
Акции, скидки и спецпредложения
Статус строительства, аэрооблеты
Обновления цен от отдела продаж
Новые типовые проекты
Це російськомовна версія
Інколи пошукові системи вважають, що користувачам потрібна саме вона, але завдяки цьому повідомленню ви можете змінити мову в один клік
Українською