Киев
Львов
Одесса
Винница
Днепр
Житомир
Запорожье
Ивано-Франковск
Кропивницкий
Луцк
Николаев
Полтава
Ровно
Сумы
Тернополь
Ужгород
Харьков
Херсон
Хмельницкий
Черкассы
Чернигов
Черновцы
Да
Изменить город
Главная
Новостройки
Продажа
Аренда
Мій ЛУН
Девелоперам: реклама на ЛУН
Риелторам: разместить объявление
Собственникам: размещение через приложение ЛУН
Для СМИ
FAQ
Вакансии
Команда поддержки
грн
$
Другие проекты
от
грн
$
Безбарьерность и
комфорт городского
пространства
Тренды и инсайты от
экспертов недвижимости
Профессиональная риелторская сеть
Приложение для аренды квартир на 3D карте
Недвижимость
Грузии
Сообщество девелоперов
жилых комплексов
Мы в соцсетях
Скачать в
Скачать в
КГ ForRest village
КГ ForRest village
О проекте
Типовые проекты
Новости
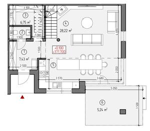
КГ ForRest village — Дом 2
137.55 м²
Таунхаус
3 спальни
2 этажа
Планировки
1 этаж
2 этаж
КГ ForRest village
Другие проекты этого КГ
Продано
Дом 1
3 спальни
154.57 м²
Таунхаус
2 этажа
Продано
Дом 3
3 спальни
163.95 м²
Таунхаус
2 этажа
Продано
Дом 4
3 спальни
166.31 м²
Таунхаус
2 этажа
Продано
Дом 5
3 спальни
153.79 м²
Таунхаус
2 этажа
Це російськомовна версія
Інколи пошукові системи вважають, що користувачам потрібна саме вона, але завдяки цьому повідомленню ви можете змінити мову в один клік
Російською
Українською