Зараз 9:00 — хвилина мовчання
Будь ласка, зупинімось і вшануємо пам’ять усіх, хто загинув через війну росії проти України. Пам’ятаємо.

Дуплексы BrownHill — Тип 3 (с ремонтом)

Цена проекта — 7.64 млн грн
Построен:  от 7.64 млн грн
110 м²
Дуплекс
3 спальни
2 этажа
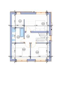
Планировки
1 этаж
2 этаж
Дуплексы BrownHill
Другие проекты этого КГ
есть построенные
Тип 1
Тип 1
4.04 млн грн
3 спальни
110 м²
Дуплекс
2 этажа
есть построенные
Тип 2 (с отделкой под ремонт)
Тип 2 (с отделкой под ремонт)
4.89 млн грн
3 спальни
110 м²
Дуплекс
2 этажа
Самые важные обновления Дуплексы BrownHill
Акции, скидки и спецпредложения
Статус строительства, аэрооблеты
Обновления цен от отдела продаж
Новые типовые проекты
Це російськомовна версія
Інколи пошукові системи вважають, що користувачам потрібна саме вона, але завдяки цьому повідомленню ви можете змінити мову в один клік
Українською