Киев
Львов
Одесса
Винница
Днепр
Житомир
Запорожье
Ивано-Франковск
Кропивницкий
Луцк
Николаев
Полтава
Ровно
Сумы
Тернополь
Ужгород
Харьков
Херсон
Хмельницкий
Черкассы
Чернигов
Черновцы
Да
Изменить город
Главная
Новостройки
Продажа
Аренда
Мій ЛУН
Девелоперам: реклама на ЛУН
Риелторам: разместить объявление
Собственникам: разместить объявление через приложение ЛУН
Для СМИ
FAQ
Вакансии
Команда поддержки
Мы в соцсетях
Скачать в
Скачать в
Другие проекты
от
исследования
городского пространства
риелторам: размещение
объявлений на ЛУН
iOS App аренды
квартир
квартиры в мире
от застройщика
сообщество девелоперов
жилых комплексов
посуточная аренда
КГ Комфортный квартал DeLuxe Cottages
КГ Комфортный квартал DeLuxe Cottages
О проекте
Типовые проекты
Контакты
Новости
КГ Комфортный квартал DeLuxe Cottages — Тип 1
Цена проекта
— 5.16 млн грн
— 124 000 $
Построен:
от 5.16 млн грн
от 124 000 $
135 м²
Коттедж
3 спальни
2 этажа
Отдел продаж
КГ Комфортный квартал DeLuxe Cottages
Работает по предварительной записи
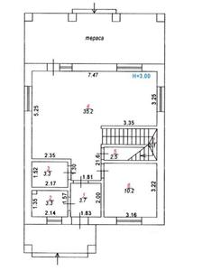
Планировки
1 этаж
2 этаж
КГ Комфортный квартал DeLuxe Cottages
Отдел продаж
Пн - Вс:
10:00 - 20:00
Работает по предварительной записи
+38 097 ... Показать
Самые важные обновления КГ Комфортный квартал DeLuxe Cottages
Акции, скидки и спецпредложения
Статус строительства, аэрооблеты
Обновления цен от отдела продаж
Новые типовые проекты
Ежедневные обновления в телеграм
Це російськомовна версія
Інколи пошукові системи вважають, що користувачам потрібна саме вона, але завдяки цьому повідомленню ви можете змінити мову в один клік
Російською
Українською