Киев
Львов
Одесса
Винница
Днепр
Житомир
Запорожье
Ивано-Франковск
Кропивницкий
Луцк
Николаев
Полтава
Ровно
Сумы
Тернополь
Ужгород
Харьков
Херсон
Хмельницкий
Черкассы
Чернигов
Черновцы
Да
Изменить город
Главная
Новостройки
Продажа
Аренда
Мій ЛУН
Девелоперам: реклама на ЛУН
Риелторам: разместить объявление
Собственникам: разместить объявление через приложение ЛУН
Для СМИ
FAQ
Вакансии
Команда поддержки
Другие проекты
от
Безбарьерность и
комфорт городского
пространства
Тренды и инсайты от
экспертов недвижимости
Профессиональная риелторская сеть
Приложение для аренды квартир на 3D карте
Недвижимость
Грузии
сообщество девелоперов
жилых комплексов
Мы в соцсетях
Скачать в
Скачать в
Таунхаусы Madera House
Таунхаусы Madera House
О проекте
Типовые проекты
Контакты
Новости
Таунхаусы Madera House — Тип 3
Цена проекта
— 6.75 млн грн
— 160 000 $
Построен:
от 6.75 млн грн
от 160 000 $
144.46 м²
Таунхаус
3 спальни
3 этажа
Отдел продаж
Таунхаусы Madera House
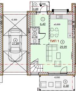
Планировки
1 этаж, гараж
2 этаж
3 этаж
Таунхаусы Madera House
Отдел продаж
Пн - Пт:
10:00 - 19:00
Сб - Вс:
10:00 - 18:00
Записаться на визит
+38 097 ... Показать
Другие проекты этого КГ
есть построенные
Тип 1
6.75 млн грн
160 000 $
3 спальни
146.39 м²
Таунхаус
3 этажа
есть построенные
Тип 2
6.75 млн грн
160 000 $
2 спальни
144.49 м²
Таунхаус
3 этажа
есть построенные
Тип 4
6.75 млн грн
160 000 $
2 спальни
144.81 м²
Таунхаус
3 этажа
есть построенные
Тип 5
6.75 млн грн
160 000 $
3 спальни
144.94 м²
Таунхаус
3 этажа
Самые важные обновления Таунхаусы Madera House
Акции, скидки и спецпредложения
Статус строительства, аэрооблеты
Обновления цен от отдела продаж
Новые типовые проекты
Ежедневные обновления в телеграм
Це російськомовна версія
Інколи пошукові системи вважають, що користувачам потрібна саме вона, але завдяки цьому повідомленню ви можете змінити мову в один клік
Російською
Українською