Київ
Львів
Одеса
Вінниця
Дніпро
Житомир
Запоріжжя
Івано-Франківськ
Кропивницький
Луцьк
Миколаїв
Полтава
Рівне
Суми
Тернопіль
Ужгород
Харків
Херсон
Хмельницький
Черкаси
Чернівці
Чернігів
Так
Змінити місто
Головна
Новобудови
Продаж
Оренда
Мій ЛУН
Девелоперам: реклама на ЛУН
Рієлторам: розмістити оголошення
Власникам: розмістити оголошення через додаток ЛУН
Для ЗМІ
FAQ
Вакансії
Команда підтримки
Iнші проєкти
від
Безбарʼєрність та
комфорт міського
простору
Тренди та інсайти від
експертів нерухомості
Професійна рієлторська мережа
Застосунок оренди квартир на 3D-мапі
Нерухомість
Грузії
сообщество девелоперов
жилых комплексов
Ми в соцмережах
Завантажити в
Завантажити в
Таунхауси Т-35
Таунхауси Т-35
Про проєкт
Типові проєкти
Новини
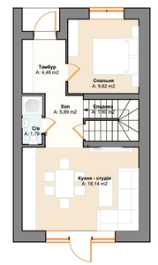
Таунхауси Т-35 — Тип 3
128.5 м²
Таунхаус
4 спальні
2 поверхи
Планування
1 поверх
2 поверх
Таунхауси Т-35
Інші проєкти цього КМ
Продано
Тип 1
4 спальні
127.04 м²
Таунхаус
2 поверхи
Продано
Тип 2
4 спальні
127.77 м²
Таунхаус
2 поверхи
Найважливіші оновлення Таунхауси Т-35
Акції, знижки та спецпропозиції
Статус будівництва, аерообльоти
Оновлення цін від відділу продажу
Нові типові проєкти
Щоденні оновлення в телеграм