Киев
Львов
Одесса
Винница
Днепр
Житомир
Запорожье
Ивано-Франковск
Кропивницкий
Луцк
Николаев
Полтава
Ровно
Сумы
Тернополь
Ужгород
Харьков
Херсон
Хмельницкий
Черкассы
Чернигов
Черновцы
Да
Изменить город
Главная
Новостройки
Продажа
Аренда
Мій ЛУН
Девелоперам: реклама на ЛУН
Риелторам: разместить объявление
Собственникам: разместить объявление через приложение ЛУН
Для СМИ
FAQ
Вакансии
Команда поддержки
Другие проекты
от
Безбарьерность и
комфорт городского
пространства
Тренды и инсайты от
экспертов недвижимости
Профессиональная риелторская сеть
Приложение для аренды квартир на 3D карте
Недвижимость
Грузии
сообщество девелоперов
жилых комплексов
Мы в соцсетях
Скачать в
Скачать в
ул. Яснополянская, 34
ул. Яснополянская, 34
О проекте
Типовые проекты
Новости
ул. Яснополянская, 34 — Тип 1
Цена проекта
— 3.15 млн грн
— 75 000 $
Построен:
от 3.15 млн грн
от 75 000 $
98.85 м²
Таунхаус
4 спальни
2 этажа
Планировки
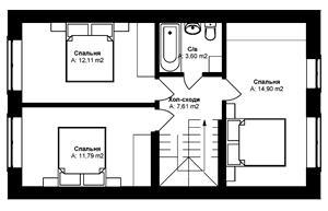
1 этаж
2 этаж
ул. Яснополянская, 34
+38 067 ... Показать
Самые важные обновления ул. Яснополянская, 34
Акции, скидки и спецпредложения
Статус строительства, аэрооблеты
Обновления цен от отдела продаж
Новые типовые проекты
Ежедневные обновления в телеграм
Це російськомовна версія
Інколи пошукові системи вважають, що користувачам потрібна саме вона, але завдяки цьому повідомленню ви можете змінити мову в один клік
Російською
Українською