Киев
Львов
Одесса
Винница
Днепр
Житомир
Запорожье
Ивано-Франковск
Кропивницкий
Луцк
Николаев
Полтава
Ровно
Сумы
Тернополь
Ужгород
Харьков
Херсон
Хмельницкий
Черкассы
Чернигов
Черновцы
Да
Изменить город
Главная
Новостройки
Продажа
Аренда
Мій ЛУН
Девелоперам: реклама на ЛУН
Риелторам: разместить объявление
Собственникам: разместить объявление через приложение ЛУН
Для СМИ
FAQ
Вакансии
Команда поддержки
Мы в соцсетях
Скачать в
Скачать в
Другие проекты
от
исследования
городского пространства
риелторам: размещение
объявлений на ЛУН
iOS App аренды
квартир
квартиры в мире
от застройщика
сообщество девелоперов
жилых комплексов
посуточная аренда
Таунхаусы История
Таунхаусы История
О проекте
Типовые проекты
Мониторинг строительства
Контакты
Новости
Таунхаусы История — Проект 3
Цена проекта
от 2.96 млн грн
от 71 280 $
Строится:
2.96 млн грн
71 280 $
99 м²
Таунхаус
3 спальни
2 этажа
Отдел продаж
Таунхаусы История
Работает по предварительной записи
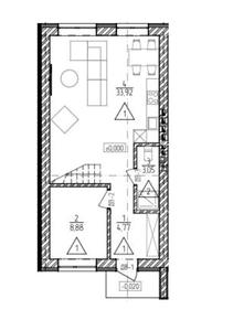
Планировки
1 этаж
2 этаж
Таунхаусы История
Отдел продаж
Пн - Пт:
09:00 - 20:00
Сб - Вс:
выходной
Работает по предварительной записи
+38 098 ... Показать
Другие проекты этого КГ
Проект 1
от 4.36 млн грн
от 105 000 $
3 спальни
150 м²
Таунхаус
2 этажа
Проект 2
от 4.01 млн грн
от 96 560 $
3 спальни
136 м²
Таунхаус
2 этажа
Самые важные обновления Таунхаусы История
Акции, скидки и спецпредложения
Статус строительства, аэрооблеты
Обновления цен от отдела продаж
Новые типовые проекты
Ежедневные обновления в телеграм
Це російськомовна версія
Інколи пошукові системи вважають, що користувачам потрібна саме вона, але завдяки цьому повідомленню ви можете змінити мову в один клік
Російською
Українською