КГ Містечко Затишне

КГ Містечко Затишне — Тип 7, 8 , 10

Цена проекта от 4.64 млн грн
Строится:  4.64 млн грн
136.35 м²
Дуплекс
3 спальни
2 этажа
Отдел продаж
КГ Містечко Затишне
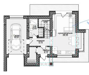
Планировки
1 этаж, гараж
2 этаж
КГ Містечко Затишне
Отдел продаж
Пн - Пт: 09:00 - 18:00
Сб: 09:00 - 15:00
Вс: выходной
Другие проекты этого КГ
Тип 4 (2)
Тип 4 (2)
от 3.88 млн грн
3 спальни
134.25 м²
Таунхаус
2 этажа
Тип 5
Тип 5
от 3.71 млн грн
3 спальни
145.31 м²
Таунхаус
2 этажа
Тип 13, 14
Тип 13, 14
от 4.22 млн грн
3 спальни
136.35 м²
Дуплекс
2 этажа
Продано
Тип 3
Тип 3
4 спальни
143.74 м²
Дуплекс
2 этажа
Продано
Тип 4
Тип 4
3 спальни
134.25 м²
Дуплекс
2 этажа
Продано
Тип 6
Тип 6
3 спальни
155.2 м²
Таунхаус
2 этажа
Смотреть еще 2 проекта
Самые важные обновления КГ Містечко Затишне
Акции, скидки и спецпредложения
Статус строительства, аэрооблеты
Обновления цен от отдела продаж
Новые типовые проекты
Це російськомовна версія
Інколи пошукові системи вважають, що користувачам потрібна саме вона, але завдяки цьому повідомленню ви можете змінити мову в один клік
Українською