Киев
Львов
Одесса
Винница
Днепр
Житомир
Запорожье
Ивано-Франковск
Кропивницкий
Луцк
Николаев
Полтава
Ровно
Сумы
Тернополь
Ужгород
Харьков
Херсон
Хмельницкий
Черкассы
Чернигов
Черновцы
Да
Изменить город
Главная
Новостройки
Продажа
Аренда
Мій ЛУН
Девелоперам: реклама на ЛУН
Риелторам: разместить объявление
Собственникам: размещение через приложение ЛУН
Для СМИ
FAQ
Вакансии
Команда поддержки
грн
$
Другие проекты
от
грн
$
Безбарьерность и
комфорт городского
пространства
Тренды и инсайты от
экспертов недвижимости
Профессиональная риелторская сеть
Приложение для аренды квартир на 3D карте
Недвижимость
Грузии
Сообщество девелоперов
жилых комплексов
Мы в соцсетях
Скачать в
Скачать в
Клубный дом Ширма Club
Клубный дом Ширма Club
О проекте
Планировки
Мониторинг строительства
Документы
Новости
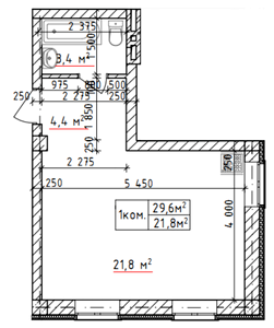
1-комнатные квартиры
Продано
1 комната
29-29.6 м²
Этажи: 1-4
3 кв. 2021
Построено
Продано
1 комната
40.1 м²
Этажи: 1-4
3 кв. 2021
Построено
2-комнатные квартиры
Продано
2 комнаты
40.1 м²
Этажи: 1-4
3 кв. 2021
Построено
Продано
2 комнаты
48.4 м²
Этажи: 1-4
3 кв. 2021
Построено
Недвижимость Киева от застройщика
Недвижимость Голосеевского района
Новостройки комфорт-класса
Клубный дом Ширма Club
Планировки
Планировка
Це російськомовна версія
Інколи пошукові системи вважають, що користувачам потрібна саме вона, але завдяки цьому повідомленню ви можете змінити мову в один клік
Російською
Українською