Київ
Львів
Одеса
Вінниця
Дніпро
Житомир
Запоріжжя
Івано-Франківськ
Кропивницький
Луцьк
Миколаїв
Полтава
Рівне
Суми
Тернопіль
Ужгород
Харків
Херсон
Хмельницький
Черкаси
Чернівці
Чернігів
Так
Змінити місто
Головна
Новобудови
Продаж
Оренда
Мій ЛУН
Девелоперам: реклама на ЛУН
Рієлторам: розмістити оголошення
Власникам: розмістити оголошення через додаток ЛУН
Для ЗМІ
FAQ
Вакансії
Команда підтримки
Iнші проєкти
від
Безбарʼєрність та
комфорт міського
простору
Тренди та інсайти від
експертів нерухомості
Професійна рієлторська мережа
Застосунок оренди квартир на 3D-мапі
Нерухомість
Грузії
сообщество девелоперов
жилых комплексов
Ми в соцмережах
Завантажити в
Завантажити в
КМ Oak Grove Town
КМ Oak Grove Town
Про проєкт
Типові проєкти
Аерообліт 360
Контакти
Новини
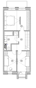
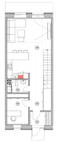
КМ Oak Grove Town — Тип 7
217 м²
Таунхаус
3 спальні
2 поверхи
Відділ продажу
КМ Oak Grove Town
Працює за попереднім записом
Планування
1 поверх
2 поверх
КМ Oak Grove Town
Відділ продажу
Пн - Нд:
09:00 - 18:00
Працює за попереднім записом
Записатись на візит
+38 067 ... Показати
Інші проєкти цього КМ
є збудовані
"Лондон" 9
14.34 млн грн
340 000 $
3 спальні
130 м²
Котедж
1 поверх
є збудовані
"Лондон" 10
14.76 млн грн
350 000 $
3 спальні
200 м²
Котедж
2 поверхи
Продано
Тип 1
3 спальні
136 м²
Таунхаус
2 поверхи
Продано
Тип 2
3 спальні
138 м²
Таунхаус
2 поверхи
Продано
Тип 5
3 спальні
119.85 м²
Таунхаус
2 поверхи
Продано
Тип 6
3 спальні
217 м²
Таунхаус
2 поверхи
Продано
Тип 8
3 спальні
217 м²
Таунхаус
2 поверхи
Продано
217 кв. м
4 спальні
217 м²
Котедж
3 поверхи
Дивитись ще 4 проєкти
Найважливіші оновлення КМ Oak Grove Town
Акції, знижки та спецпропозиції
Статус будівництва, аерообльоти
Оновлення цін від відділу продажу
Нові типові проєкти
Щоденні оновлення в телеграм