КГ LakeWood 2 — Лондон

Цена проекта от 14.92 млн грн
Строится:  14.92 млн грн
283 м²
Коттедж
3 спальни
2 этажа
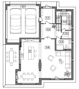
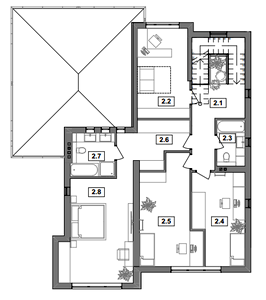
Планировки
1 этаж, гараж
2 этаж
КГ LakeWood 2
Другие проекты этого КГ
Честер
Честер
от 11.42 млн грн
4 спальни
246 м²
Коттедж
2 этажа
Йорк
Йорк
от 11.32 млн грн
4 спальни
244 м²
Коттедж
2 этажа
Тип I
Тип I
от 9.03 млн грн
3 спальни
214 м²
Дуплекс
2 этажа
Тип II
Тип II
от 8.39 млн грн
2 спальни
199 м²
Дуплекс
2 этажа
Самые важные обновления КГ LakeWood 2
Акции, скидки и спецпредложения
Статус строительства, аэрооблеты
Обновления цен от отдела продаж
Новые типовые проекты
Це російськомовна версія
Інколи пошукові системи вважають, що користувачам потрібна саме вона, але завдяки цьому повідомленню ви можете змінити мову в один клік
Українською