Київ
Львів
Одеса
Вінниця
Дніпро
Житомир
Запоріжжя
Івано-Франківськ
Кропивницький
Луцьк
Миколаїв
Полтава
Рівне
Суми
Тернопіль
Ужгород
Харків
Херсон
Хмельницький
Черкаси
Чернівці
Чернігів
Так
Змінити місто
Головна
Новобудови
Продаж
Оренда
Мій ЛУН
Девелоперам: реклама на ЛУН
Рієлторам: розмістити оголошення
Власникам: розмістити оголошення через додаток ЛУН
Для ЗМІ
FAQ
Вакансії
Команда підтримки
Iнші проєкти
від
Безбарʼєрність та
комфорт міського
простору
Тренди та інсайти від
експертів нерухомості
Професійна рієлторська мережа
Застосунок оренди квартир на 3D-мапі
Нерухомість
Грузії
сообщество девелоперов
жилых комплексов
Ми в соцмережах
Завантажити в
Завантажити в
КМ Holland Park
КМ Holland Park
Про проєкт
Типові проєкти
Аерообліт 360
Новини
КМ Holland Park — Амстердам №1
100 м²
Таунхаус
4 спальні
2 поверхи
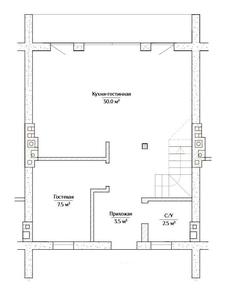
Планування
1 поверх
2 поверх
КМ Holland Park
Інші проєкти цього КМ
є збудовані
Тип 1
2.31 млн грн
55 000 $
3 спальні
90 м²
Дуплекс
2 поверхи
Будинок 8
від 2.95 млн грн
від 70 130 $
4 спальні
93.5 м²
Таунхаус
2 поверхи
Продано
Прованс
3 спальні
195 м²
Котедж
2 поверхи
Продано
Амстердам
3 спальні
120 м²
Котедж
2 поверхи
Продано
Челсі
2 спальні
127 м²
Таунхаус
2 поверхи
Продано
Тоскана
3 спальні
110 м²
Таунхаус
3 поверхи
Продано
Holland Park
3 спальні
135 м²
Дуплекс
2 поверхи
Продано
Верона
3 спальні
95 м²
Таунхаус
2 поверхи
Дивитись ще 4 проєкти
Найважливіші оновлення КМ Holland Park
Акції, знижки та спецпропозиції
Статус будівництва, аерообльоти
Оновлення цін від відділу продажу
Нові типові проєкти
Щоденні оновлення в телеграм