Киев
Львов
Одесса
Винница
Днепр
Житомир
Запорожье
Ивано-Франковск
Кропивницкий
Луцк
Николаев
Полтава
Ровно
Сумы
Тернополь
Ужгород
Харьков
Херсон
Хмельницкий
Черкассы
Чернигов
Черновцы
Да
Изменить город
Главная
Новостройки
Продажа
Аренда
Мій ЛУН
Девелоперам: реклама на ЛУН
Риелторам: разместить объявление
Собственникам: размещение через приложение ЛУН
Для СМИ
FAQ
Вакансии
Команда поддержки
грн
$
Другие проекты
от
грн
$
Безбарьерность и
комфорт городского
пространства
Тренды и инсайты от
экспертов недвижимости
Профессиональная риелторская сеть
Приложение для аренды квартир на 3D карте
Недвижимость
Грузии
Сообщество девелоперов
жилых комплексов
Мы в соцсетях
Скачать в
Скачать в
КГ Крушинские Озера
КГ Крушинские Озера
О проекте
Типовые проекты
Новости
2 фотографий
КГ Крушинские Озера — Уют
Цена проекта
от 2.05 млн грн
от 48 500 $
В проекте:
2.05 млн грн
48 500 $
75 м²
Коттедж
2 спальни
2 этажа
Планировки
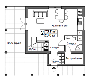
1 этаж
2 этаж
КГ Крушинские Озера
Другие проекты этого КГ
есть построенные
Успех Плюс
2.8 млн грн
66 000 $
4 спальни
105.7 м²
Коттедж
2 этажа
Комфорт
от 1.91 млн грн
от 45 000 $
2 спальни
55 м²
Коттедж
1 этаж
Комфорт Плюс
от 2.03 млн грн
от 48 000 $
2 спальни
62 м²
Коттедж
1 этаж
Комфорт Премиум
от 2.16 млн грн
от 51 000 $
3 спальни
67 м²
Коттедж
1 этаж
Семейный
от 2.36 млн грн
от 55 800 $
3 спальни
74 м²
Коттедж
1 этаж
Радость Плюс
от 1.96 млн грн
от 46 200 $
2 спальни
70 м²
Коттедж
2 этажа
Радость Премиум
от 2 млн грн
от 47 300 $
2 спальни
72 м²
Коттедж
2 этажа
Долголетие
от 2.63 млн грн
от 62 000 $
3 спальни
85 м²
Коттедж
1 этаж
Смотреть еще 4 проекта
Це російськомовна версія
Інколи пошукові системи вважають, що користувачам потрібна саме вона, але завдяки цьому повідомленню ви можете змінити мову в один клік
Російською
Українською