КГ Европа — Ницца

55 м²
Коттедж
2 спальни
2 этажа
Отдел продаж
КГ Европа
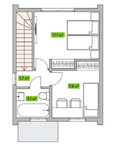
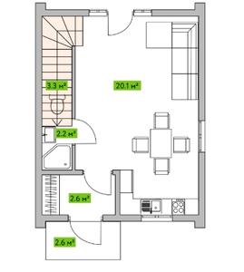
Планировки
1 этаж
2 этаж
КГ Европа
Отдел продаж
Пн - Вс: 09:00 - 18:00
Другие проекты этого КГ
есть построенные
Прага
Прага
3.63 млн грн
2 спальни
78 м²
Коттедж
1 этаж
Амстердам
Амстердам
от 4.09 млн грн
3 спальни
100 м²
Коттедж
2 этажа
Кембридж
Кембридж
от 4.13 млн грн
3 спальни
105 м²
Коттедж
2 этажа
Женева
Женева
от 4.45 млн грн
3 спальни
106 м²
Коттедж
1 этаж
Варшава
Варшава
от 4.49 млн грн
3 спальни
122 м²
Коттедж
2 этажа
Барселона
Барселона
от 4.64 млн грн
4 спальни
140 м²
Коттедж
2 этажа
Монако
Монако
от 6.32 млн грн
4 спальни
236 м²
Коттедж
2 этажа
Малая Прага
Малая Прага
от 3.27 млн грн
2 спальни
60.4 м²
Коттедж
1 этаж
Смотреть еще 4 проекта
Самые важные обновления КГ Европа
Акции, скидки и спецпредложения
Статус строительства, аэрооблеты
Обновления цен от отдела продаж
Новые типовые проекты
Це російськомовна версія
Інколи пошукові системи вважають, що користувачам потрібна саме вона, але завдяки цьому повідомленню ви можете змінити мову в один клік
Українською