Киев
Львов
Одесса
Винница
Днепр
Житомир
Запорожье
Ивано-Франковск
Кропивницкий
Луцк
Николаев
Полтава
Ровно
Сумы
Тернополь
Ужгород
Харьков
Херсон
Хмельницкий
Черкассы
Чернигов
Черновцы
Да
Изменить город
Главная
Новостройки
Продажа
Аренда
Мій ЛУН
Девелоперам: реклама на ЛУН
Риелторам: разместить объявление
Собственникам: разместить объявление через приложение ЛУН
Для СМИ
FAQ
Вакансии
Команда поддержки
Другие проекты
от
Безбарьерность и
комфорт городского
пространства
Тренды и инсайты от
экспертов недвижимости
Профессиональная риелторская сеть
Приложение для аренды квартир на 3D карте
Недвижимость
Грузии
сообщество девелоперов
жилых комплексов
Мы в соцсетях
Скачать в
Скачать в
ЖК LakePark
ЖК LakePark
О проекте
Квартиры
NEW
Планировки
Мониторинг строительства
Документы
Новости
2-комнатные квартиры
Продано
2 комнаты
63.53-65.09 м²
Этажи: 4
4 кв. 2019
Построено
Продано
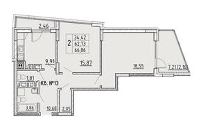
2 комнаты
66.46-67.29 м²
Этажи: 5-6, 8
4 кв. 2019
Построено
Продано
2 комнаты
78.33 м²
Этажи: 9
4 кв. 2019
Построено
Продано
2 комнаты
79.7-81.01 м²
Этажи: 5-6, 8
4 кв. 2019
Построено
Продано
2 комнаты
87.33 м²
Этажи: 2
4 кв. 2019
Построено
Недвижимость Львова от застройщика
Недвижимость Сиховского района
Новостройки комфорт-класса
Квартиры от застройщика СБ ГРУПП
ЖК LakePark
Планировки
Планировка
Це російськомовна версія
Інколи пошукові системи вважають, що користувачам потрібна саме вона, але завдяки цьому повідомленню ви можете змінити мову в один клік
Російською
Українською