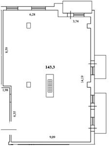
3-комнатные квартиры от 10.82 млн грн
75 500 грн за м²
3 комнаты
143.3 м²
Этажи: 2-10
4 кв. 2019
Построено
Самые важные обновления ЖК Ясная Поляна 2
Акции, скидки и спецпредложения
Новые фотографии со строительства, аэрооблеты
Обновления цен от отдела продаж
Обновление документов в реестрах
Це російськомовна версія
Інколи пошукові системи вважають, що користувачам потрібна саме вона, але завдяки цьому повідомленню ви можете змінити мову в один клік
Українською