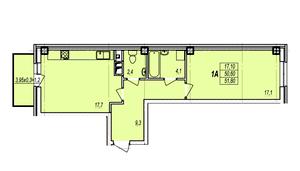
1-комнатные квартиры
    
            
        
            
                    2-комнатные квартиры
    
            
        
            
                    3-комнатные квартиры
    
            
        
            
                    4-комнатные квартиры
    
            
        
            
            Планировка
        
         
             
             
             
             
             
             
             
             
             
             
             
             
             
             
             
             
             
             
             
             
             
             
             
             
             
             
             
             
             
             
             
             
             
             
            