Новобудови
Продаж
Оренда
Мій ЛУН
Інше
Завантажити в
Завантажити в
Девелоперам: реклама на ЛУН
Рієлторам: розмістити оголошення
Власникам: розміщення через ЛУН додаток
Для ЗМІ
FAQ
Вакансії
Команда підтримки
грн
$
Iнші проєкти
від
грн
$
Безбарʼєрність та
комфорт міського
простору
Тренди та інсайти від
експертів нерухомості
Професійна рієлторська мережа
Застосунок оренди квартир на 3D-мапі
Нерухомість
Грузії
Спільнота девелоперів
житлових проєктів
Ми в соцмережах
вул. Зелена
вул. Зелена
Про проєкт
Типові проєкти
Моніторинг будівництва
Новини
вул. Зелена — Тип 1
Ціна проєкту
— 4.44 млн грн
— 100 000 $
Збудований:
від 4.44 млн грн
від 100 000 $
135 м²
Таунхаус
3 спальні
2 поверхи
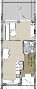
Планування
1 поверх
2 поверх
вул. Зелена