Київ
Львів
Одеса
Вінниця
Дніпро
Житомир
Запоріжжя
Івано-Франківськ
Кропивницький
Луцьк
Миколаїв
Полтава
Рівне
Суми
Тернопіль
Ужгород
Харків
Херсон
Хмельницький
Черкаси
Чернівці
Чернігів
Так
Змінити місто
Головна
Новобудови
Продаж
Оренда
Мій ЛУН
Девелоперам: реклама на ЛУН
Рієлторам: розмістити оголошення
Власникам: розмістити оголошення через додаток ЛУН
Для ЗМІ
FAQ
Вакансії
Команда підтримки
Iнші проєкти
від
Безбарʼєрність та
комфорт міського
простору
Тренди та інсайти від
експертів нерухомості
Професійна рієлторська мережа
Застосунок оренди квартир на 3D-мапі
Нерухомість
Грузії
сообщество девелоперов
жилых комплексов
Ми в соцмережах
Завантажити в
Завантажити в
ЖК River Rika
ЖК River Rika
Про проєкт
Планування
Новини
1-кімнатні квартири
1 кімната
50.63-54.5 м²
Поверхи: 3-8
Будинок 1
В проєкті
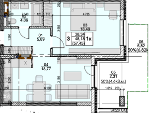
1 кімната
57.45 м²
Поверхи: 2
Будинок 1
В проєкті
Усі ЖК Хуста
ЖК River Rika
Планування
Найважливіші оновлення ЖК River Rika
Акції, знижки та спецпропозиції
Нові фотографії з будівництва, аерообльоти
Оновлення цін від відділу продажу
Оновлення документів в реєстрах
Щоденні оновлення в телеграм
Планування