КМ SMADE Park — Будинок #1

162.8 м²
Котедж
3 спальні
2 поверхи
Відділ продажу
КМ SMADE Park
Працює за попереднім записом
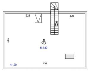
Планування
1 поверх
2 поверх
КМ SMADE Park
Відділ продажу
Пн - Нд: 09:00 - 18:00
Працює за попереднім записом
Інші проєкти цього КМ
Будинок  #4
Будинок #4
3 спальні
119 м²
Котедж
2 поверхи
Будинок #5
Будинок #5
3 спальні
162.8 м²
Котедж
1 поверх
Найважливіші оновлення КМ SMADE Park
Акції, знижки та спецпропозиції
Статус будівництва, аерообльоти
Оновлення цін від відділу продажу
Нові типові проєкти