Новобудови
Продаж
Оренда
Мій ЛУН
Інше
Девелоперам: реклама на ЛУН
Рієлторам: розмістити оголошення
Власникам: розміщення через ЛУН додаток
Для ЗМІ
FAQ
Вакансії
Команда підтримки
грн
$
Iнші проєкти
від
грн
$
Безбарʼєрність та
комфорт міського
простору
Тренди та інсайти від
експертів нерухомості
Професійна рієлторська мережа
Застосунок оренди квартир на 3D-мапі
Нерухомість
Грузії
Спільнота девелоперів
житлових проєктів
Ми в соцмережах
Завантажити в
Завантажити в
вул. Павленка, 36б
вул. Павленка, 36б
Про проєкт
Типові проєкти
Новини
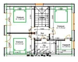
вул. Павленка, 36б — Тип 1
95 м²
Таунхаус
4 спальні
3 поверхи
Планування
1 поверх
2 поверх
Тераса
вул. Павленка, 36б
Інші проєкти цього КМ
Продано
Тип 2
4 спальні
95 м²
Таунхаус
3 поверхи
Продано
Тип 3
3 спальні
90 м²
Таунхаус
3 поверхи