Зараз 9:00 — хвилина мовчання
Будь ласка, зупинімось і вшануємо пам’ять усіх, хто загинув через війну росії проти України. Пам’ятаємо.
Таунхаус Forest Lane

Таунхаус Forest Lane — Тип 1

Ціна проєкту — 7.33 млн грн
Збудований:  від 7.33 млн грн
179 м²
Таунхаус
4 спальні
3 поверхи
Відділ продажу
Таунхаус Forest Lane
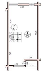
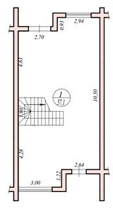
Планування
1 поверх
2 поверх
3 поверх
Таунхаус Forest Lane
Відділ продажу
Пн - Нд: 10:00 - 19:00
Найважливіші оновлення Таунхаус Forest Lane
Акції, знижки та спецпропозиції
Статус будівництва, аерообльоти
Оновлення цін від відділу продажу
Нові типові проєкти